Запчасти Komatsu PC360LC-10 M8-A НИЖН. КРЫШКА (/) ЧАСТИ КОРПУСА

Схема запчастей Komatsu PC360LC-10 - M8-A НИЖН. КРЫШКА (/) ЧАСТИ КОРПУСА
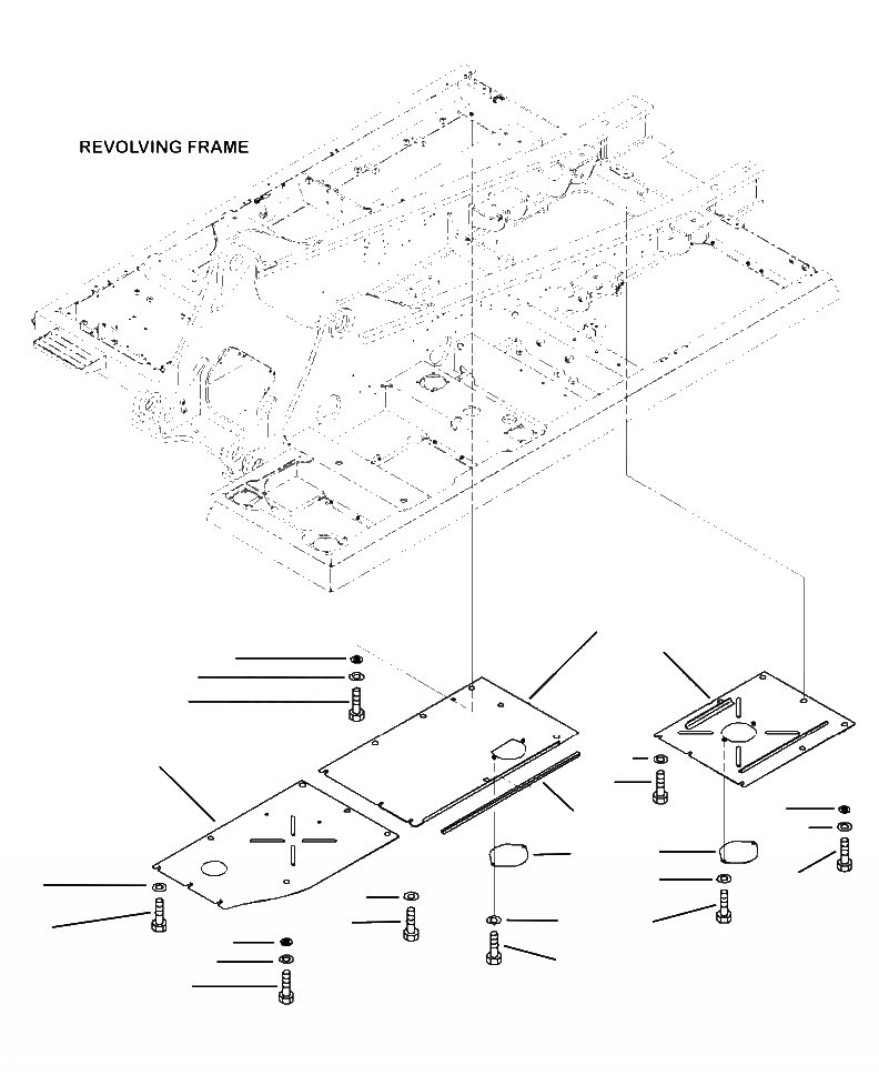
1
2
3
4
5
6
7
8
9
10
11
12
13
14
15
16
17
18
19
20
21
22
23
24
25
FIT
1:1
100%

Артикул

Название

Примечание

Количество

1

207-54-42171

COVER

2

01010-81230

BOLT

3

175-54-34170

WASHER

4

20Y-54-12550

COLLAR

5

01010-81240

BOLT

6

01643-31232

WASHER

7

207-54-42251

COVER

8

01010-81230

BOLT

9

175-54-34170

WASHER

10

20Y-54-12550

COLLAR

11

01010-81230

BOLT

12

01643-31232

WASHER

13

207-54-51440

PLATE

14

01010-81230

BOLT

15

01643-31232

WASHER

16

207-54-42151

COVER

17

207-54-42591

SHEET

18

01010-81230

BOLT

19

175-54-34170

WASHER

20

203-54-62670

COLLAR

21

01010-81240

BOLT

22

01643-31232

WASHER

23

207-54-51440

PLATE

24

01010-81230

BOLT

25

01643-31232

WASHER

Выбрано товаров: 25