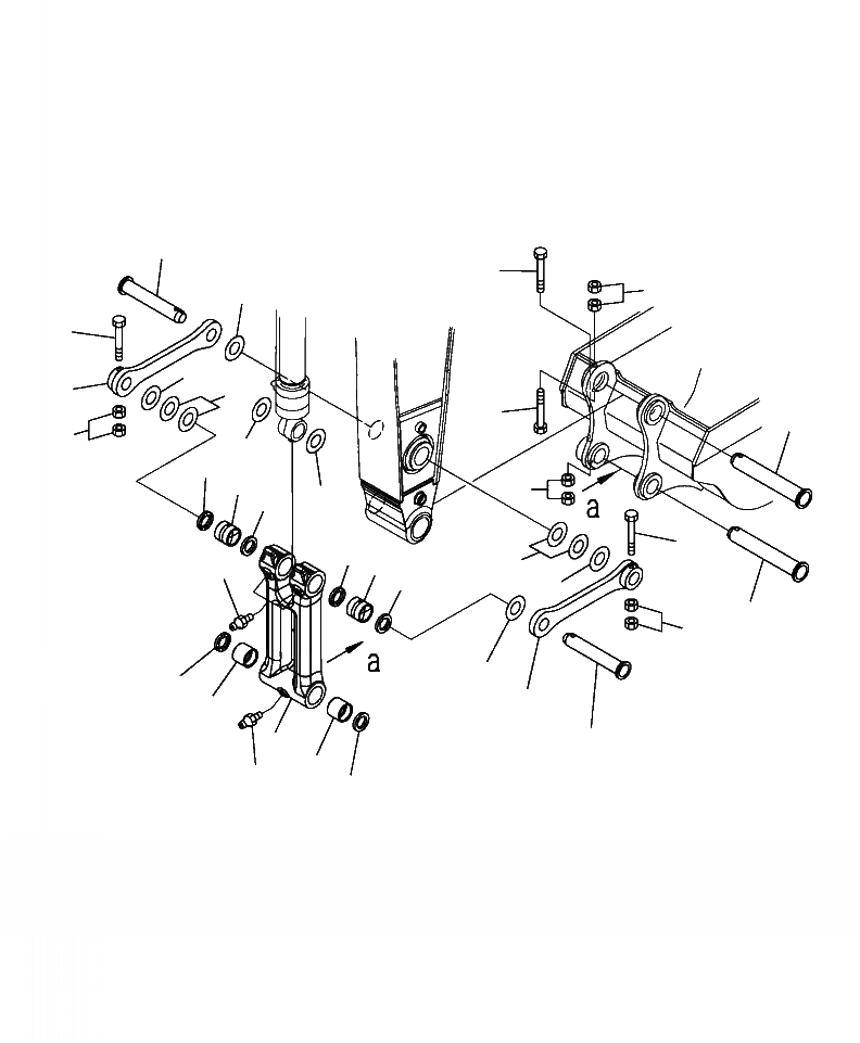
Запчасти Komatsu PC360LC-10 T- РУКОЯТЬ, СОЕДИНЕНИЕ КОВША РАБОЧЕЕ ОБОРУДОВАНИЕ

Схема запчастей Komatsu PC360LC-10 - T- РУКОЯТЬ, СОЕДИНЕНИЕ КОВША РАБОЧЕЕ ОБОРУДОВАНИЕ
1
2
5
4
2
5
4
5
3
5
5
3
5
11
6
8
11
11
12
11
11
8
9
6
10
9
10
9
10
11
12
7
9
10
7
FIT
1:1
100%

Артикул

Название

Примечание

Количество

|$0

207-70-00480

LINK ASSEMBLY

1

NSS

LINK

2

207-70-33160

BUSHING

3

207-70-33160

BUSHING

4

07020-00000

FITTING, GREASE

5

207-70-72120

SEAL, DUST

6

207-70-33120

LINK

7

207-70-73210

PIN

8

207-70-33141

PIN

9

208-70-73160

BOLT

10

01580-12419

NUT

11

207-70-24190

SPACER, T = 0.8 MM

12

207-70-24210

SPACER, T = 1.5 MM

Выбрано товаров: 13