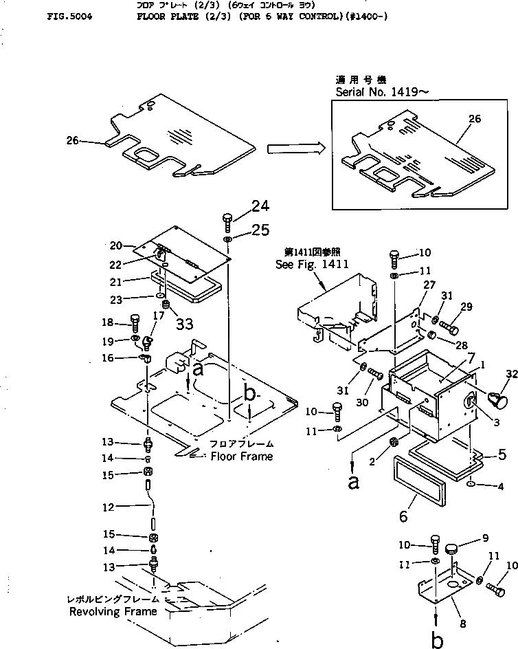
Запчасти Komatsu PC38UU-1 ПОЛ КАБИНЫ (/) (ДЛЯ WAY УПРАВЛ-Е)(№-) ЧАСТИ КОРПУСА

Схема запчастей Komatsu PC38UU-1 - ПОЛ КАБИНЫ (/) (ДЛЯ WAY УПРАВЛ-Е)(№-) ЧАСТИ КОРПУСА
FIT
1:1
100%

Артикул

Название

Примечание

Количество

G-1

21X-54-X0041

FLOOR FRAME GROUP

|$2

21X-54-13221

BOX

1

21W-54-13440

HINGE (WELDED)

2

08037-02512

GROMMET

3

04431-11000

CLIP (WELDED)

4

04431-30000

PLATE

5

20U-54-13250

SHEET

6

20U-54-13260

SHEET

7

20U-54-13580

SHEET

7

20T-54-42130

SHEET

8

21X-54-13241

COVER

9

09415-05016

CAP

10

21X-54-13280

BOLT

11

01643-71032

WASHER

11

21X-54-13260

WASHER

12

21X-54-13170

TUBE

13

20R-46-11160

CONNECTOR

14

07831-00411

SLEEVE

15

07832-00410

NUT

16

21X-54-13181

BOSS

17

07020-00675

FITTING,GREASE

18

01010-51025

BOLT

19

01643-31032

WASHER

20

20U-54-13571

COVER

21

20U-54-13280

SHEET

22

04431-11000

CLIP (WELDED)

23

04431-30000

PLATE

24

01010-51020

BOLT

25

01643-31032

WASHER

26

21X-54-13121

MAT

26

21X-54-13120

MAT

27

20U-54-13232

COVER

28

09415-02512

CAP

29

21X-43-11460

BOLT

30

01220-70816

SCREW

31

21X-43-11470

WASHER

32

21X-54-11840

PLUG

33

08037-02512

GROMMET

Выбрано товаров: 38