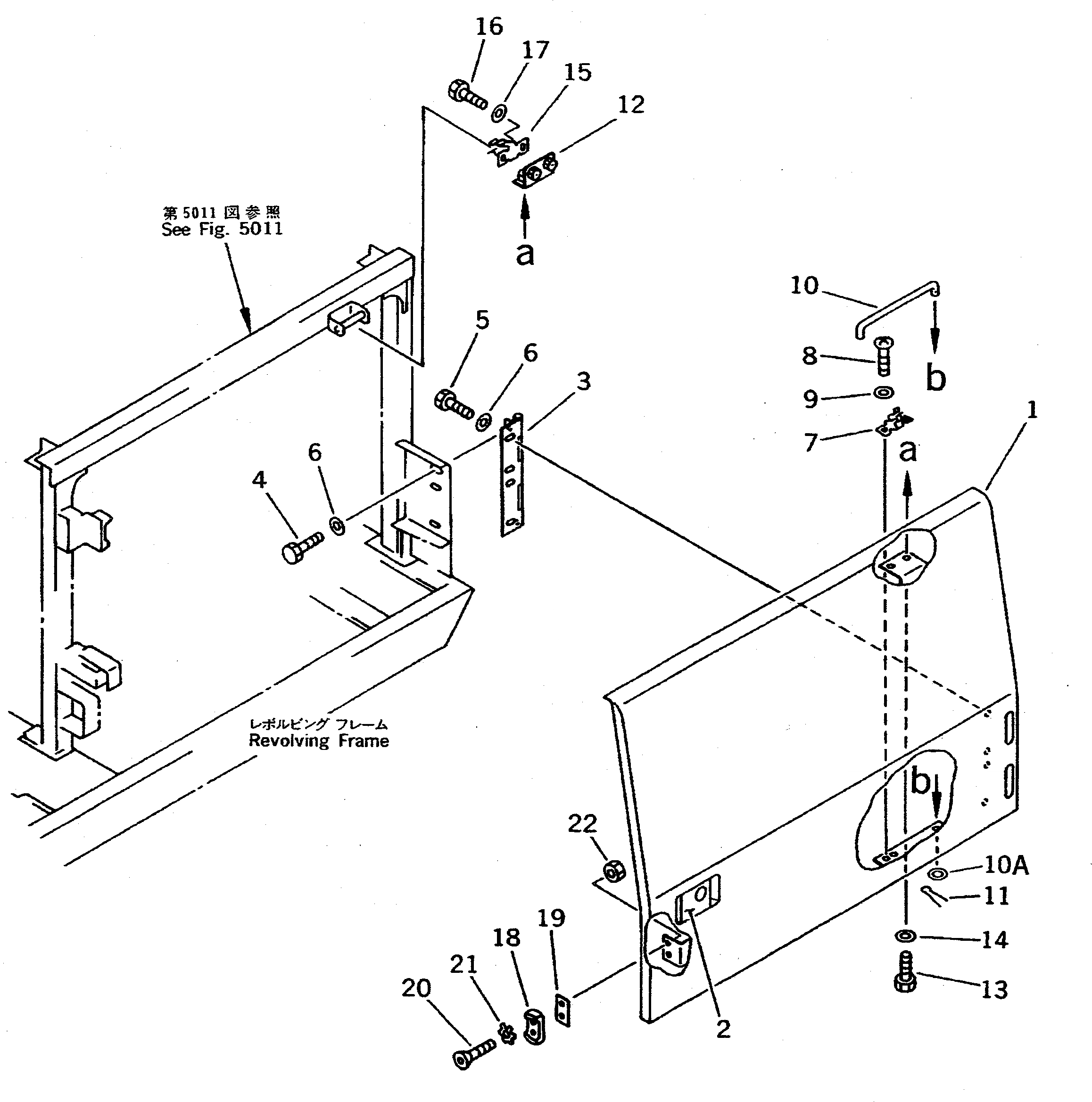
Запчасти Komatsu PC400-5C ЛЕВ. COVER ЧАСТИ КОРПУСА

Схема запчастей Komatsu PC400-5C - ЛЕВ. COVER ЧАСТИ КОРПУСА
FIT
1:1
100%

Артикул

Название

Примечание

Количество

1

208-54-52810

DOOR,L.H.

2

198-54-41982

LOCK ASS'Y (WELDED)

3

207-54-51790

HINGE

4

01010-51235

BOLT

5

01010-51225

BOLT

6

01643-31232

WASHER

7

20B-54-12210

SPRING

8

01220-40408

SCREW

9

01641-20405

WASHER

10

205-54-64140

BAR

10A

01641-21016

WASHER

11

04050-13018

PIN,COTTER

12

207-54-51391

BRACKET

13

01010-51020

BOLT

14

01643-31032

WASHER

15

20Y-54-12920

CLAMP

16

01010-51020

BOLT

17

01643-31032

WASHER

18

566-54-14420

STOPPER

19

203-54-52610

PLATE

20

20Y-54-11760

SCREW

21

566-54-13570

WASHER

22

01580-00806

NUT

Выбрано товаров: 23