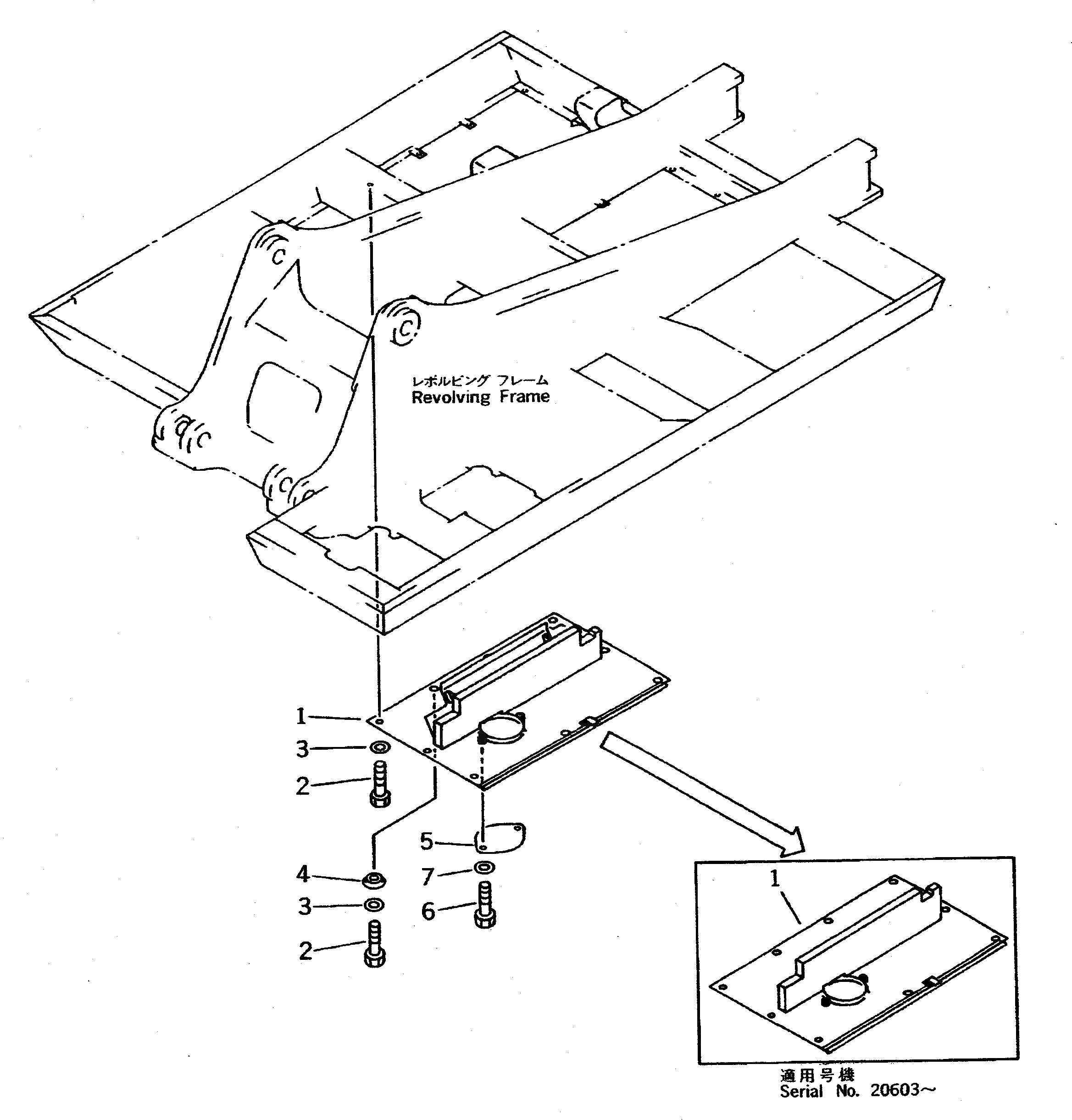
Запчасти Komatsu PC400-5C НИЖН. КРЫШКА (ДЛЯ ОСНОВН. РАМА И РАМА ПРАВ.) ЧАСТИ КОРПУСА

Схема запчастей Komatsu PC400-5C - НИЖН. КРЫШКА (ДЛЯ ОСНОВН. РАМА И РАМА ПРАВ.) ЧАСТИ КОРПУСА
FIT
1:1
100%

Артикул

Название

Примечание

Количество

G-1

208-54-X1550

COVER GROUP

1

208-54-52720

COVER

2

01010-51230

BOLT

3

01643-31232

WASHER

4

20Y-54-12550

COLLAR

5

207-54-51440

PLATE

6

01010-51230

BOLT

7

01643-31232

WASHER

Выбрано товаров: 8