Запчасти Komatsu PC400-6 ОСНОВН. КОНСТРУКЦИЯ (КОНДИЦ. ВОЗДУХА И ПОДУШКИ)(№88-) КАБИНА ОПЕРАТОРА И СИСТЕМА УПРАВЛЕНИЯ

Схема запчастей Komatsu PC400-6 - ОСНОВН. КОНСТРУКЦИЯ (КОНДИЦ. ВОЗДУХА И ПОДУШКИ)(№88-) КАБИНА ОПЕРАТОРА И СИСТЕМА УПРАВЛЕНИЯ
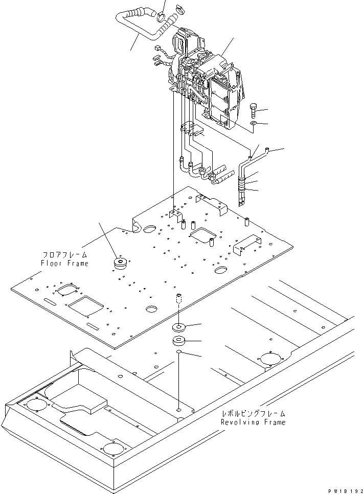
1
2
3
4
5
6
6
7
8
9
10
11
11
12
13
FIT
1:1
100%

Артикул

Название

Примечание

Количество

1

203-979-6813

UNIT ASS'Y

2

01010-81020

BOLT

3

01643-31032

WASHER

4

207-979-7170

HOSE

5

207-979-7180

HOSE

6

08034-00519

BAND

7

08017-32801

CONDUIT

8

20Y-979-2181

HOSE

9

07281-00419

CLAMP

10

207-54-65210

CUSHION

11

207-54-65190

PLATE

12

07000-13025

O-RING

13

208-54-64560

SEAL

Выбрано товаров: 13