Запчасти Komatsu PC400-7 ПЕРЕГОРОДКА. (КАБИНА)(/) FOAMLESS M ЧАСТИ КОРПУСА

Схема запчастей Komatsu PC400-7 - ПЕРЕГОРОДКА. (КАБИНА)(/) FOAMLESS M ЧАСТИ КОРПУСА
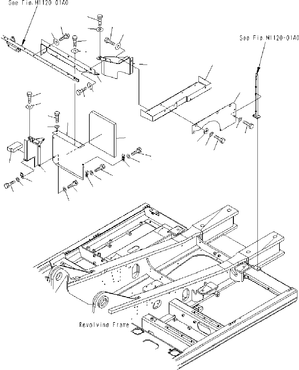
1
2
5
4
3
5
4
10
11
9
10
11
7
8
6
8
7
17
18
20
21
19
24
25
26
22
23
12
14
16
15
13
8
7
22
23
8
7
FIT
1:1
100%

Артикул

Название

Примечание

Количество

1

208-54-71711

COVER

2

208-54-71721

COVER

3

203-54-62670

COLLAR

4

01010-81230

BOLT

5

01643-31232

WASHER

6

208-54-71732

COVER

7

01010-81230

BOLT

8

175-54-34170

WASHER

9

208-54-71751

COVER

10

01010-81230

BOLT

11

175-54-34170

WASHER

12

208-54-72160

COVER

13

208-54-73391

SHEET

14

20Y-54-27761

CATCH

15

01010-81220

BOLT

16

01643-31232

WASHER

17

208-54-71761

COVER

18

208-54-73271

SHEET

19

20Y-54-27761

CATCH

20

01010-81220

BOLT

21

01643-31232

WASHER

22

01010-81220

BOLT

23

01643-31232

WASHER

24

01010-81230

BOLT

25

01643-31232

WASHER

26

20Y-54-27761

CATCH

Выбрано товаров: 26