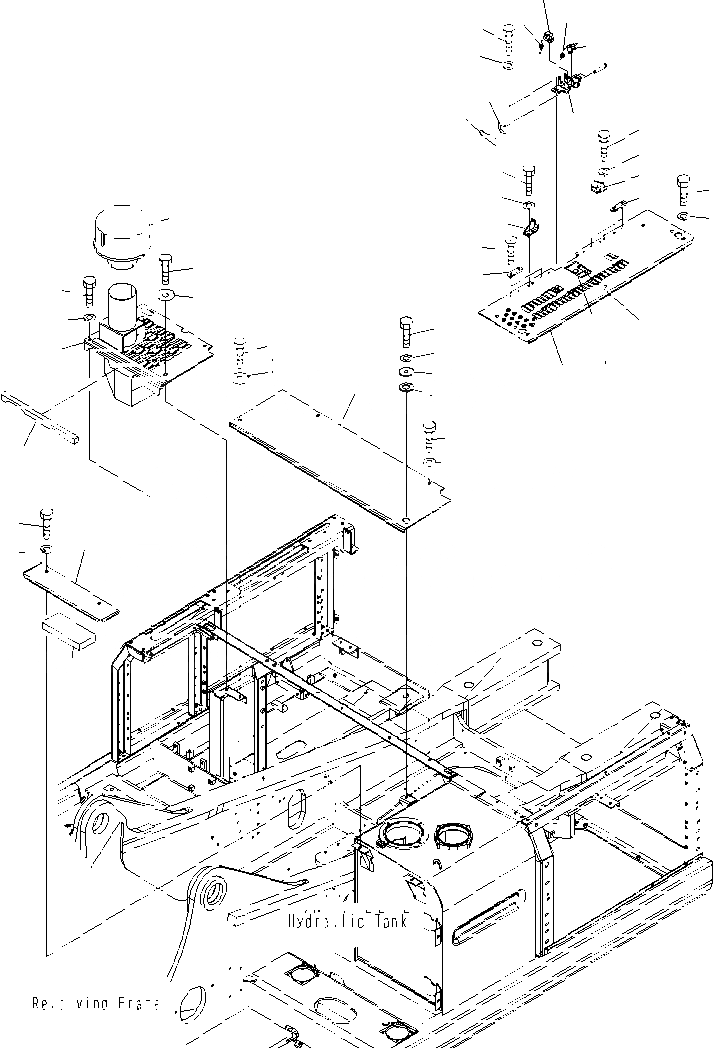
Запчасти Komatsu PC400-7 КРЫШКА(КАБИНА) FOAMLESS M ЧАСТИ КОРПУСА

Схема запчастей Komatsu PC400-7 - КРЫШКА(КАБИНА) FOAMLESS M ЧАСТИ КОРПУСА
42
27
28
25
26
23
32
29
33
34
35
37
36
30
31
1
3
4
2
7
20
5
17
16
14
15
19
18
12
10
13
11
9
8
16
17
6
7
21
22
24
40
41
38
39
FIT
1:1
100%

Артикул

Название

Примечание

Количество

1

208-54-71612

COVER

2

20Y-54-25850

LOCK

3

20Y-54-27540

LOCK ASS'Y

4

205-54-76280

ROTOR ASS'Y

5

207-54-61441

BRACKET

6

207-54-61450

BRACKET

7

205-54-68440

PLATE

8

154-54-22520

PIN

9

208-54-71920

BRACKET

10

208-54-71910

LEVER

11

207-54-72230

LEVER

12

20X-54-21460

SPRING

13

21K-54-26351

SPRING

14

04050-13020

PIN

15

01640-21123

WASHER

16

01010-81025

BOLT

17

01643-31032

WASHER

18

01010-81030

BOLT

19

01643-31032

WASHER

20

01224-40616

SCREW

21

01010-81230

BOLT

22

01643-31232

WASHER

23

208-54-74211

COVER

24

208-54-73112

SHEET

25

01010-81230

BOLT

26

01643-31232

WASHER

27

01010-81230

BOLT

28

175-54-34170

WASHER

29

208-54-71621

COVER

30

01010-81230

BOLT

31

01643-31232

WASHER

32

01010-81230

BOLT

33

175-54-34170

WASHER

34

01010-81230

BOLT

35

01643-31232

WASHER

36

20Y-54-19920

PLATE

37

20Y-54-19930

COLLAR

|$38

208-54-71670

COVER

38

COVER

39

208-54-73890

SHEET

40

01010-81230

BOLT

41

01643-31232

WASHER

42

421-U12-3100

PRECLEANER

Выбрано товаров: 43