Качественные детали и логистика
Оригинальные и аналоговые запчасти с доставкой по России, Казахстану и Беларуси
©2022 PartSell ООО "Система" ИНН 2463123282 ОГРН 1212400004838
Центральный офис: г. Красноярск, Академика Киренского, д.87, пом.4
Телефон: 8 (800) 777-65-74 Email: zakaz@partsell.ru
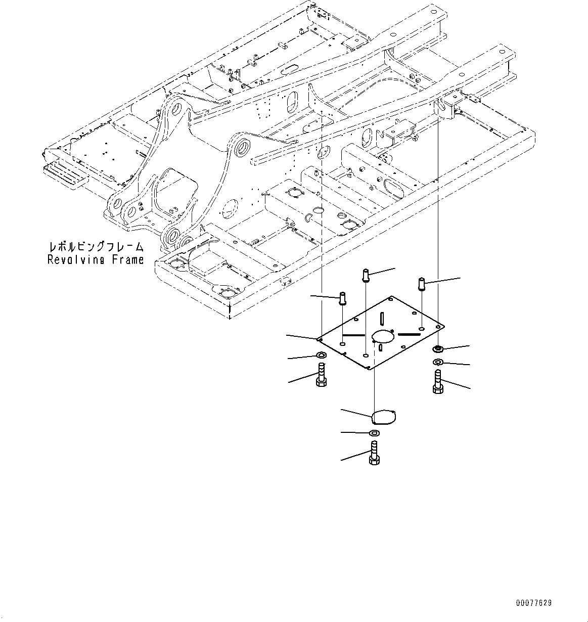
НИЖН. КРЫШКА, (/) (№7-)
№
Артикул
Название
Примечание
Количество
1
208-54-78350
Cover
2
22U-54-24760
Grommet
3
01010-81230
Bolt
4
175-54-34170
Washer
5
20Y-54-12550
Collar
6
7
01643-31232
8
207-54-51440
Plate
9
10
Выбрано товаров: 0