Запчасти Komatsu PC400HD-5K ЛЕВ. COVER ЧАСТИ КОРПУСА

Схема запчастей Komatsu PC400HD-5K - ЛЕВ. COVER ЧАСТИ КОРПУСА
FIT
1:1
100%

Артикул

Название

Примечание

Количество

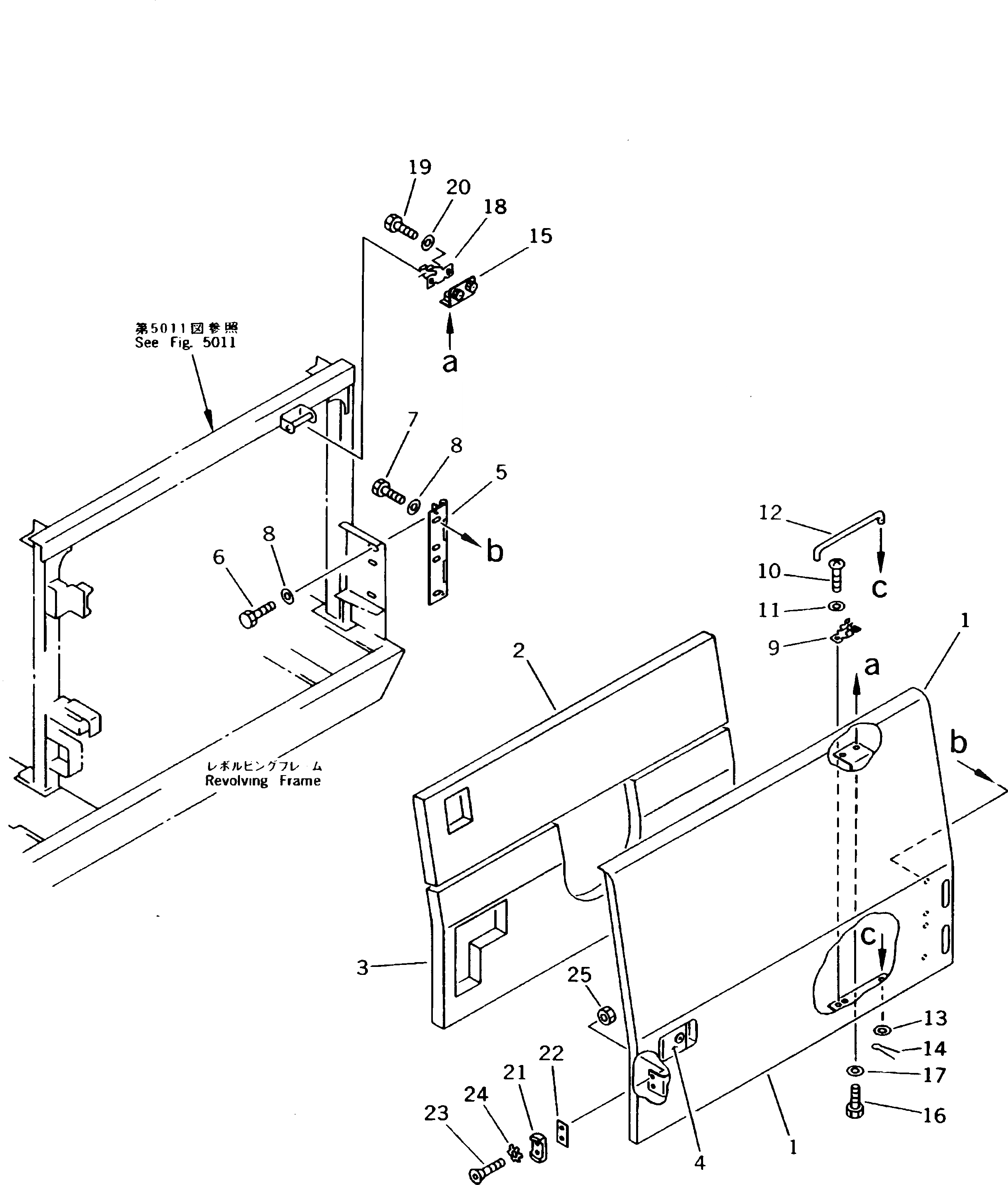
1

208-54-51611

DOOR,L.H.

2

208-54-51631

SEAT

3

208-54-51940

SEAT

4

198-54-41982

LOCK ASS'Y (WELDED)

5

207-54-51790

HINGE

6

01010-51235

BOLT

7

01010-51225

BOLT

8

01643-31232

WASHER

9

20B-54-12210

SPRING

10

01220-40408

SCREW

11

01641-20405

WASHER

12

205-54-64140

BAR

13

01641-21016

WASHER

14

04050-13018

PIN,COTTER

15

207-54-51391

BRACKET

16

01010-51020

BOLT

17

01643-31032

WASHER

18

20Y-54-12920

CLAMP

19

01010-51020

BOLT

20

01643-31032

WASHER

21

566-54-14420

STOPPER

22

203-54-52610

PLATE

23

20Y-54-11760

SCREW

24

566-54-13570

WASHER

25

01580-00806

NUT

Выбрано товаров: 25