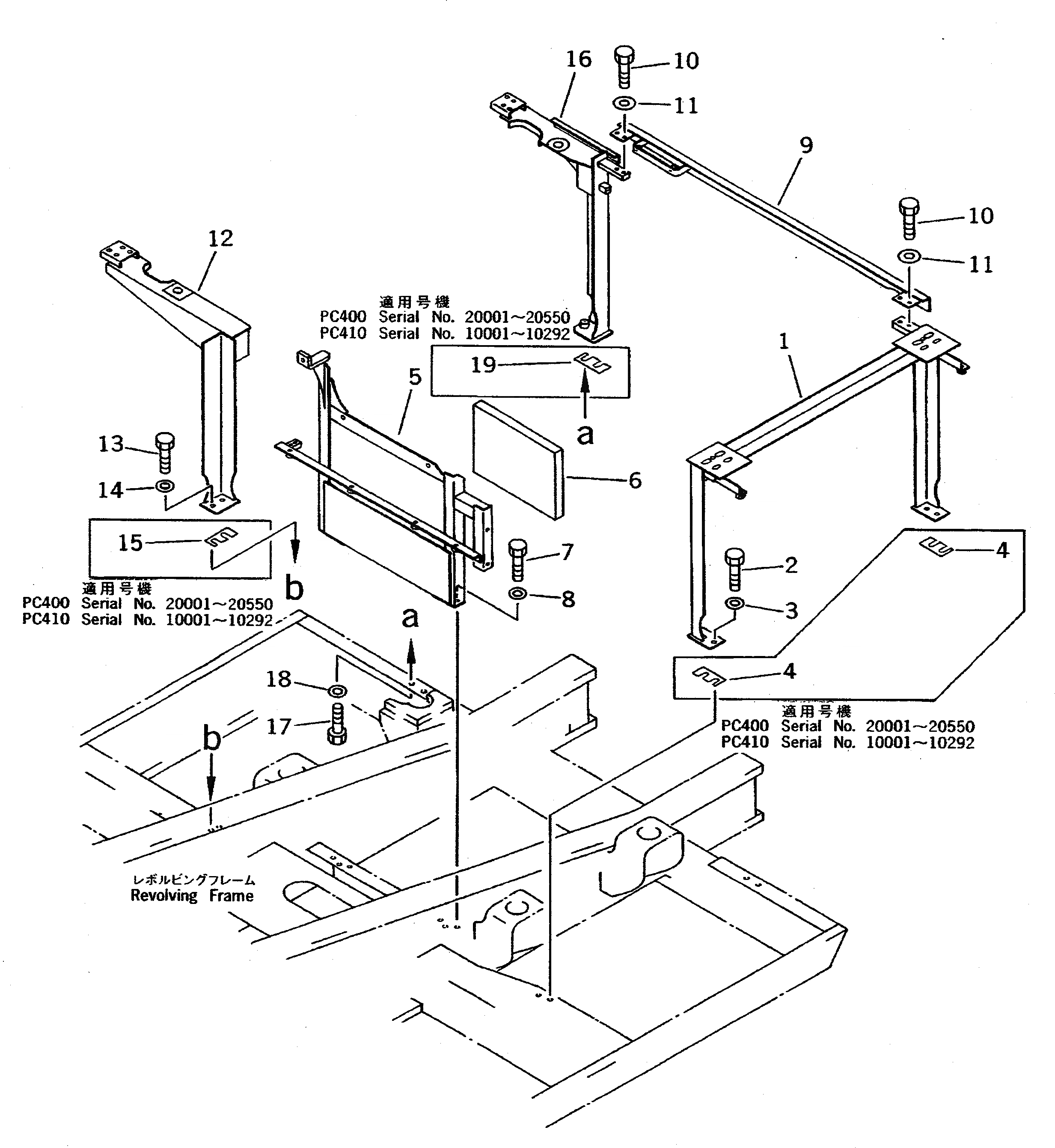
Запчасти Komatsu PC400LC-5 РАМА ЧАСТИ КОРПУСА

Схема запчастей Komatsu PC400LC-5 - РАМА ЧАСТИ КОРПУСА
FIT
1:1
100%

Артикул

Название

Примечание

Количество

1

208-54-51153

FRAME

2

01010-51240

BOLT

3

01643-31232

WASHER

4

207-54-52560

PLATE

5

208-54-51710

FRAME

6

207-54-51530

SHEET

7

01010-51240

BOLT

8

01643-31232

WASHER

9

208-54-51192

FRAME

10

01010-51240

BOLT

11

175-54-34170

WASHER

12

208-54-51771

FRAME

13

01010-51230

BOLT

14

01643-31232

WASHER

15

207-54-52560

PLATE

16

208-54-51781

FRAME

17

01010-51240

BOLT

18

01643-31232

WASHER

19

207-54-52560

PLATE

Выбрано товаров: 19