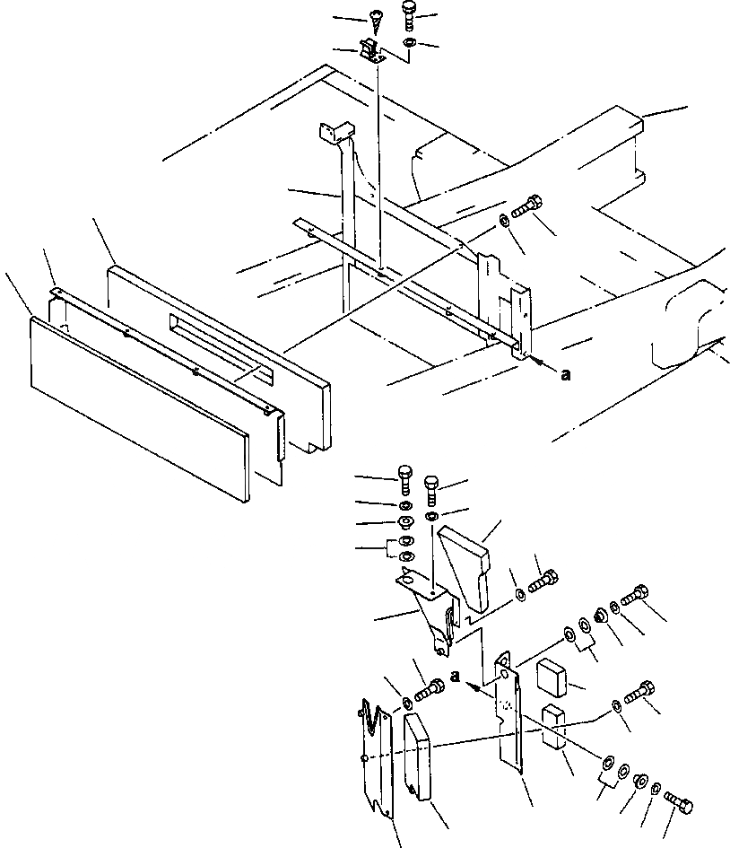
Запчасти Komatsu PC400LC-5 ПЕРЕГОРОДКА ЧАСТИ КОРПУСА

Схема запчастей Komatsu PC400LC-5 - ПЕРЕГОРОДКА ЧАСТИ КОРПУСА
23
22
21
24
28
27
19
18
25
20
26
3
3
4
4
2
5
14
6
15
1
14
9
15
16
10
17
12
9
10
13
17
11
16
15
8
14
7
FIT
1:1
100%

Артикул

Название

Примечание

Количество

1

208-54-51841

COVER

2

208-54-51671

SHEET

3

01010-81230

BOLT

4

01643-31232

WASHER

5

20Y-54-12822

COLLAR

6

20Y-54-12990

WASHER

7

208-54-51661

COVER

8

208-54-51681

SHEET

9

01010-81230

BOLT

10

01643-31232

WASHER

11

208-54-51750

COVER

12

208-54-51960

SHEET

13

208-54-51970

SHEET

14

01010-81230

BOLT

15

01643-31232

WASHER

16

20Y-54-12822

COLLAR

17

20Y-54-12990

WASHER

18

207-54-51281

COVER

19

207-54-51451

SHEET

20

207-54-51540

SHEET

21

207-54-51550

CATCHER

22

01370-00512

SCREW

23

01010-81230

BOLT

24

01643-31232

WASHER

25

01010-81230

BOLT

26

01643-31232

WASHER

Выбрано товаров: 26