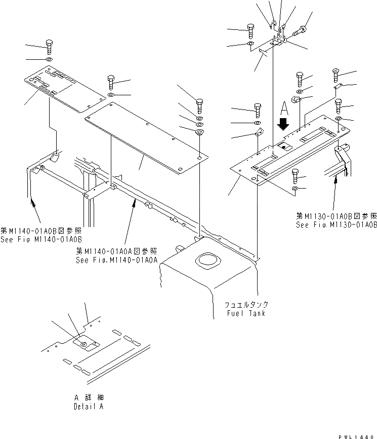
Запчасти Komatsu PC400LC-6 КРЫШКА(ВЕРХН.) (КАБИНА)(№-) ЧАСТИ КОРПУСА

Схема запчастей Komatsu PC400LC-6 - КРЫШКА(ВЕРХН.) (КАБИНА)(№-) ЧАСТИ КОРПУСА
1
1
2
2
3
3
4
5
6
7
8
9
10
11
12
13
14
15
16
17
18
19
19
20
20
21
22
23
24
25
26
27
28
29
30
FIT
1:1
100%

Артикул

Название

Примечание

Количество

1

01010-81230

BOLT

2

01643-31232

WASHER

3

208-54-61413

COVER

4

20Y-54-25850

LOCK

5

20Y-54-27540

LOCK ASS'Y

|6

205-54-76280

ROTOR ASS'Y

6

205-54-68440

PLATE

7

01224-40616

SCREW

8

207-54-61711

BRACKET

9

207-54-61721

LEVER

10

207-54-61731

LEVER

11

21K-54-26351

SPRING

12

20X-54-21460

SPRING

13

135-43-16460

PIN

14

04050-13020

PIN

15

01010-81030

BOLT

16

01643-31032

WASHER

17

207-54-61441

BRACKET,L.H.

18

207-54-61450

BRACKET,R.H.

19

01010-81025

BOLT

20

01643-31032

WASHER

21

208-54-61422

COVER

22

01010-81230

BOLT

23

175-54-34170

WASHER

24

207-54-61431

COVER

25

01010-81230

BOLT

26

175-54-34170

WASHER

27

01010-81230

BOLT

28

01643-31232

WASHER

29

20Y-54-19920

PLATE

30

20Y-54-19930

COLLAR

Выбрано товаров: 31