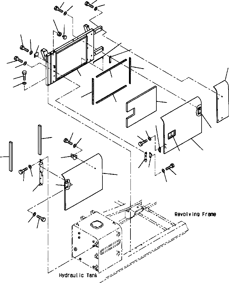
Запчасти Komatsu PC400LC-6LC FIG NO. M-A ЛЕВ. ДВЕРЬ КАБИНА ЧАСТИ КОРПУСА

Схема запчастей Komatsu PC400LC-6LC - FIG NO. M-A ЛЕВ. ДВЕРЬ КАБИНА ЧАСТИ КОРПУСА
37
33
34
38
32
26
27
28
25
35
36
19
30
20
39
18
29
40
30
41
29
15
17
10
13
16
11
2
12
14
2
9
21
1
23
8
3
7
24
4
6
5
22
31
FIT
1:1
100%

Артикул

Название

Примечание

Количество

1

208-54-61111

COVER

2

207-54-61160

SHEET

3

21K-54-22460

HINGE

4

207-54-61171

BRACKET

5

01010-51230

BOLT

6

01643-31232

WASHER

7

01010-51230

BOLT

8

01643-31232

WASHER

9

207-54-61181

PLATE

10

01010-51230

BOLT

11

01643-31232

WASHER

12

207-54-61151

COVER

13

20Y-54-28161

HINGE

14

198-54-41982

LOCK ASSEMBLY

15

205-54-53550

DOVE TAIL

16

01010-50612

BOLT

17

01643-30623

WASHER

18

208-54-69890

FRAME

19

01010-51230

BOLT

20

01643-31232

WASHER

21

20Y-54-28170

BRACKET

22

205-54-51970

DOVE TAIL

23

01010-50616

BOLT

24

01643-30623

WASHER

25

20Y-54-28182

PLATE

26

01010-51230

BOLT

27

01643-31232

WASHER

28

20Y-54-29232

BAR

29

20Y-54-29251

SEAL

30

20Y-54-29261

SEAL

31

203-54-56710

STOPPER

32

01580-11008

NUT

33

01010-51235

BOLT

34

01643-31232

WASHER

35

20Y-54-28290

PLATE

36

208-54-61221

COVER, L.H

37

01010-51230

BOLT

38

01643-31232

WASHER

39

01010-51230

BOLT

40

01643-31232

WASHER

41

20Y-54-28261

SHEET

Выбрано товаров: 41