Запчасти Komatsu PC400LC-7 БОКОВ. КРЫШКА ЛЕВ. ЧАСТИ КОРПУСА

Схема запчастей Komatsu PC400LC-7 - БОКОВ. КРЫШКА ЛЕВ. ЧАСТИ КОРПУСА
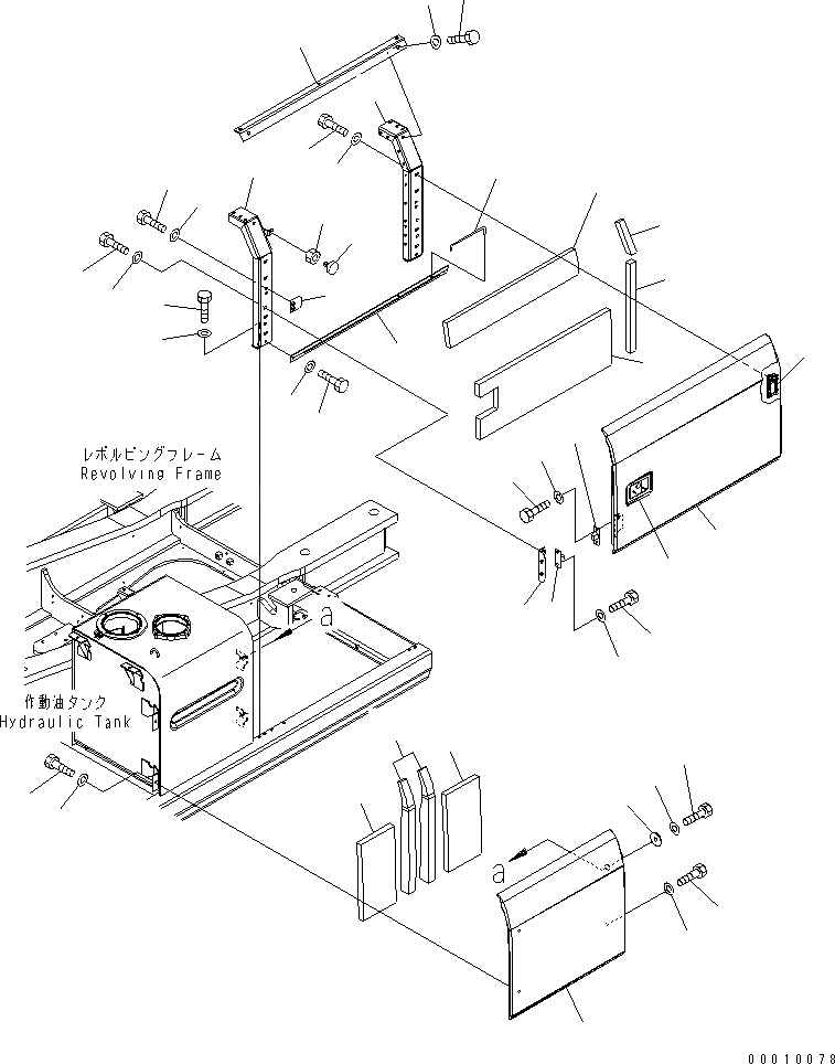
1
2
3
4
5
6
7
8
9
10
11
12
13
14
15
16
17
18
19
20
21
22
23
24
25
26
27
28
29
30
31
32
33
34
35
36
37
37
38
39
39
39
40
40
40
FIT
1:1
100%

Артикул

Название

Примечание

Количество

1

208-54-71313

FRAME

1

208-54-71311

FRAME

2

208-54-71340

FRAME

2

20Y-54-61421

FRAME

3

208-54-71380

FRAME

4

01010-81230

BOLT

5

01643-31232

WASHER

6

208-54-71391

PLATE

7

01010-81230

BOLT

8

01643-31232

WASHER

9

20Y-54-61470

PLATE

10

01010-81230

BOLT

11

01643-31232

WASHER

12

20Y-54-28170

BRACKET

13

01010-81230

BOLT

14

01643-31232

WASHER

15

205-54-51971

DOVE TAIL

15

205-54-51970

DOVE TAIL

16

01010-80616

BOLT

17

01643-30623

WASHER

18

20Y-54-11611

STOPPER

19

01580-11008

NUT

20

208-54-71210

COVER

21

198-54-41984

LOCK (WELDED)

21

198-54-41982

LOCK ASS'Y (WELDED)

22

20Y-54-63411

HINGE (WELDED)

23

01010-81230

BOLT

24

01643-31232

WASHER

25

205-54-53550

DOVE TAIL

26

01010-80612

BOLT

27

01643-30623

WASHER

28

20Y-54-29231

BAR

29

208-54-73710

SHEET

30

208-54-73720

SHEET

31

208-54-73821

SHEET

32

208-54-73830

SHEET

33

01010-81230

BOLT

34

01643-31232

WASHER

35

208-54-71240

COVER

36

208-54-73131

SHEET

37

208-54-73960

SHEET

38

203-54-62670

COLLAR

39

01010-81230

BOLT

40

01643-31232

WASHER

Выбрано товаров: 44