Качественные детали и логистика
Оригинальные и аналоговые запчасти с доставкой по России, Казахстану и Беларуси
©2022 PartSell ООО "Система" ИНН 2463123282 ОГРН 1212400004838
Центральный офис: г. Красноярск, Академика Киренского, д.87, пом.4
Телефон: 8 (800) 777-65-74 Email: zakaz@partsell.ru
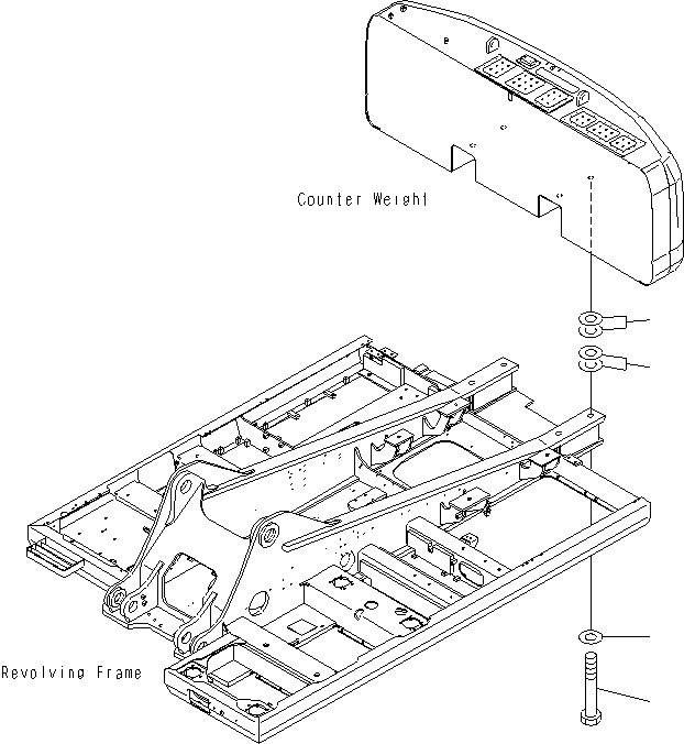
КРЕПЛЕНИЕ ПРОТИВОВЕСА
№
Артикул
Название
Примечание
Количество
1
208-46-74121
BOLT
2
01643-34212
WASHER
3
208-46-52260
SHIM. 1.0MM
4
208-46-52270
SHIM. 0.5MM
Выбрано товаров: 0