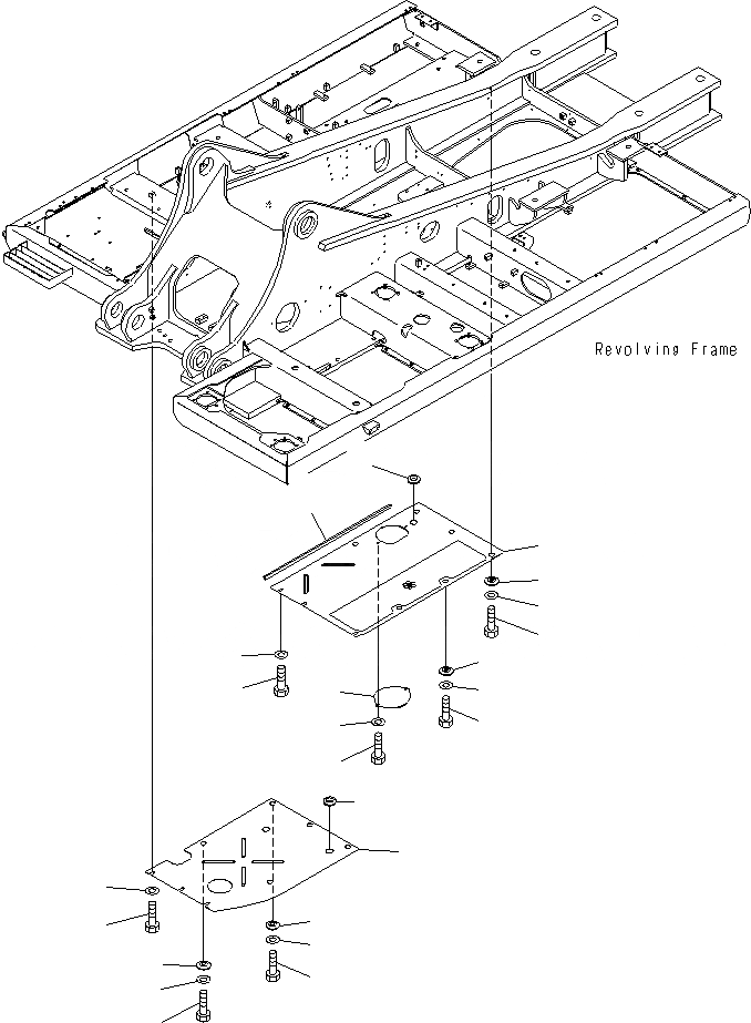
Запчасти Komatsu PC400LCSE-8R НИЖН. КРЫШКА (ОСНОВНАЯ РАМА) (R.H) M

Схема запчастей Komatsu PC400LCSE-8R - НИЖН. КРЫШКА (ОСНОВНАЯ РАМА) (R.H) M
1
6
10
9
6
8
7
11
13
12
5
4
15
14
17
16
18
20
19
18
22
21
3
2
FIT
1:1
100%

Артикул

Название

Примечание

Количество

1

208-54-77961

COVER

2

208-54-76221

SHEET

3

08037-03614

GROMMET

4

01010-81230

BOLT

5

175-54-34170

WASHER

6

20Y-54-12550

COLLAR

7

01010-81230

BOLT

8

01643-31232

WASHER

9

01010-81240

BOLT

10

01643-31232

WASHER

11

207-54-51440

PLATE

12

01010-81230

BOLT

13

01643-31232

WASHER

14

208-54-77921

COVER

15

08037-03614

GROMMET

16

01010-81230

BOLT

17

175-54-34170

WASHER

18

20Y-54-12550

COLLAR

19

01010-81230

BOLT

20

01643-31232

WASHER

21

01010-81240

BOLT

22

01643-31232

WASHER

Выбрано товаров: 22