Запчасти Komatsu PC400ST-6LC ЛЕВ. ДВЕРЬ (КАБИНА)(№8-) ЧАСТИ КОРПУСА

Схема запчастей Komatsu PC400ST-6LC - ЛЕВ. ДВЕРЬ (КАБИНА)(№8-) ЧАСТИ КОРПУСА
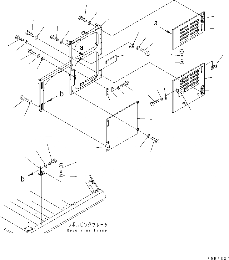
1
2
3
3
4
5
5
6
6
7
8
9
10
10A
11
12
13
13
14
14
15
16
17
17
17
18
18
18
19
20
21
22
23
24
25
26
27
27
28
28
29
30
FIT
1:1
100%

Артикул

Название

Примечание

Количество

1

208-54-67114

DOOR

|1

208-54-67113

DOOR

2

205-54-64160

HINGE

3

205-54-53550

DOVE TAIL

4

205-54-51970

DOVE TAIL

5

01010-80616

BOLT

6

01643-30623

WASHER

7

01010-51225

BOLT

8

01643-31232

WASHER

9

20Y-54-28170

BRACKET

10

208-54-67121

COVER

10A

205-54-64160

HINGE

11

01010-51230

BOLT

12

01643-31232

WASHER

13

01010-51230

BOLT

14

01643-31232

WASHER

15

208-54-67133

COVER

16

205-54-64160

HINGE

17

01010-51230

BOLT

18

01643-31232

WASHER

19

208-54-67144

FRAME

|19

208-54-67143

FRAME

20

208-54-67152

BRACKET

|20

208-54-67151

BRACKET

21

208-54-66980

BRACKET

22

01010-51025

BOLT

23

01643-31032

WASHER

24

20Y-54-29232

BAR

25

20Y-54-12920

CLAMP

26

207-54-31870

BRACKET

27

01010-51020

BOLT

28

01643-31032

WASHER

29

01010-51230

BOLT

30

01643-31232

WASHER

Выбрано товаров: 34