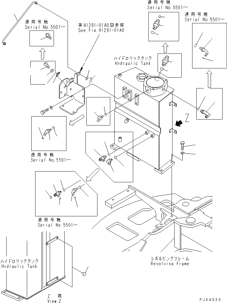
Запчасти Komatsu PC40MR-1 ГИДР. БАК. (КРЕПЛЕНИЕ И ПАТРУБОК) (ДЛЯ ПОВОРОТН. ОТВАЛА С ИЗМ. УГЛОМ) ГИДРАВЛИКА

Схема запчастей Komatsu PC40MR-1 - ГИДР. БАК. (КРЕПЛЕНИЕ И ПАТРУБОК) (ДЛЯ ПОВОРОТН. ОТВАЛА С ИЗМ. УГЛОМ) ГИДРАВЛИКА
1
2
3
3
4
4
5
5
5
5
6
6
7
7
8
8
9A
9B
9C
9C
9C
9D
9
9
9
9
9
9
10
11
11
12
13
14
15
16
FIT
1:1
100%

Артикул

Название

Примечание

Количество

1

01010-81240

BOLT

2

01643-31232

WASHER

3

20U-62-41810

NIPPLE

|3

417-855-1360

UNION

4

02783-10522

ELBOW

|4

07236-10522

ELBOW

5

07002-12434

O-RING

6

02782-10312

ELBOW

|6

207-62-33930

ELBOW

7

02782-10311

ELBOW

|7

20Y-970-1731

ELBOW

8

20U-62-41820

TEE

|8

203-62-58410

TEE

9A

207-62-64740

O-RING

9B

02896-11015

O-RING

9C

02896-11009

O-RING

9D

02896-11008

O-RING

9

07002-11423

O-RING

10

20B-54-12210

SPRING

11

01023-10406

SCREW

|11

01220-40406

SCREW

12

01641-20405

WASHER

13

22M-54-12760

ROD

14

01643-31032

WASHER

15

04052-10833

PIN

16

20T-54-74510

CAP

Выбрано товаров: 26