Запчасти Komatsu PC40MR-2-AC КАБИНА (КОНТРОЛЬ ХОДА) КАБИНА ОПЕРАТОРА И СИСТЕМА УПРАВЛЕНИЯ

Схема запчастей Komatsu PC40MR-2-AC - КАБИНА (КОНТРОЛЬ ХОДА) КАБИНА ОПЕРАТОРА И СИСТЕМА УПРАВЛЕНИЯ
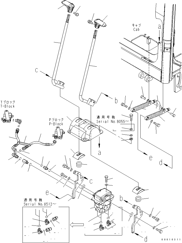
1
2
3
3A
4
5
6
7
7
8
8
9
10
11
11
12
12
13
13
14
15
15
16
16
17
18
19
20
21
22
23
24
25
25
26
27
27
27
27
28
28
28
29
29
29
29
30
30
31
31
32
32
33
33
34
34
35
35
36
37
38
39
39
FIT
1:1
100%

Артикул

Название

Примечание

Количество

1

20Y-43-21151

COVER

2

20Y-43-21260

COLLAR

3

01010-D1025

BOLT

3A

01643-71032

WASHER

4

203-54-56970

WASHER

5

22M-43-21391

LEVER,L.H.

6

22M-43-21381

LEVER,R.H.

7

01252-81025

BOLT

8

01643-71032

WASHER

9

20Y-43-21231

KNOB,L.H.

10

20Y-43-21241

KNOB,R.H.

11

01023-20416

SCREW

12

22M-43-11590

DAMPER

13

04205-30832

PIN

14

04052-20833

PIN

15

01010-80830

BOLT

16

01643-30823

WASHER

17

702-16-01950

PILOT VALVE

18

01010-D1025

BOLT

19

01643-71032

WASHER

20

11Y-62-12140

NIPPLE

21

07000-12011

O-RING

22

02896-11008

O-RING

23

21W-62-43970

ELBOW

24

20T-910-8660

NIPPLE

25

07000-12011

O-RING

26

02896-11008

O-RING

27

21K-62-73110

ELBOW

28

02896-11008

O-RING

29

07000-12011

O-RING

30

22M-43-22111

PLATE

31

20Y-43-21260

COLLAR

|31

01643-31645

WASHER

32

203-43-51620

SPRING

33

20Y-43-21140

COVER

34

01010-81030

BOLT

35

01643-31032

WASHER

36

22M-62-23160

HOSE,BLUE¤ WHITE

|36

21U-62-34750

BAND¤ BLUE

|36

21U-62-34770

BAND¤ WHITE

37

22M-62-23170

HOSE,GREEN¤ RED

|37

21U-62-34730

BAND¤ GREEN

|37

21U-62-34760

BAND¤ RED

38

08034-20519

BAND

39

22M-62-23330

JOINT

Выбрано товаров: 0