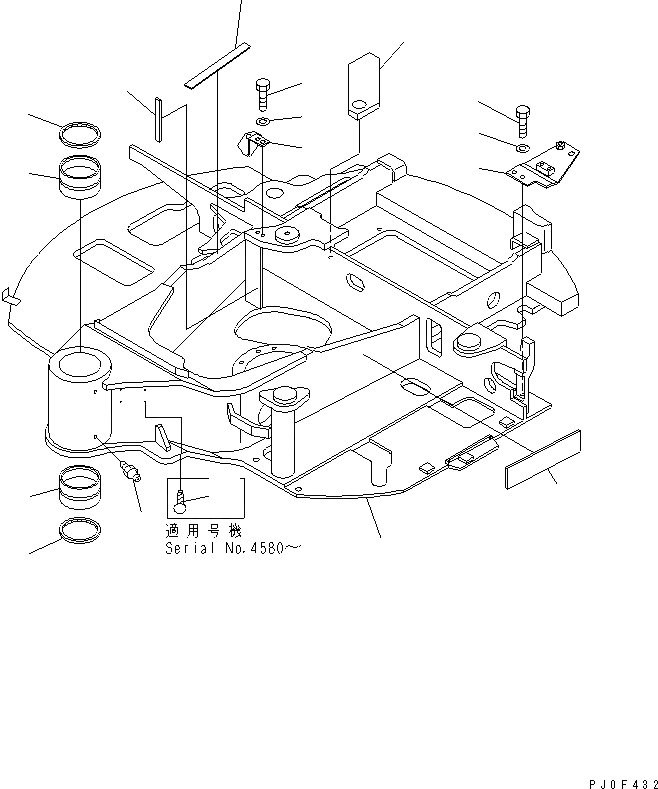
Запчасти Komatsu PC40MRX-1 ОСНОВНАЯ РАМА (КРОМЕ ЯПОН.) ОСНОВНАЯ РАМА И ЕЕ ЧАСТИ

Схема запчастей Komatsu PC40MRX-1 - ОСНОВНАЯ РАМА (КРОМЕ ЯПОН.) ОСНОВНАЯ РАМА И ЕЕ ЧАСТИ
1
2
2
3
3
4
5
5A
5B
5C
6
7
8
9
10
11
12
FIT
1:1
100%

Артикул

Название

Примечание

Количество

1

22N-46-11113

FRAME

1

22N-46-11112

FRAME

1

22N-46-11111

FRAME

2

20T-70-81521

BUSHING

3

07145-00110

SEAL

4

07020-00000

FITTING

5

22M-46-11340

CUSHION

5A

22M-46-11380

CUSHION

5B

22M-46-11390

CUSHION

5C

22M-46-11410

CUSHION

6

22M-46-11351

BRACKET

7

01010-81225

BOLT

8

01643-31232

WASHER

9

22M-46-11370

BRACKET

10

07372-21030

BOLT

11

01643-51032

WASHER

12

04418-13060

SCREW

Выбрано товаров: 17