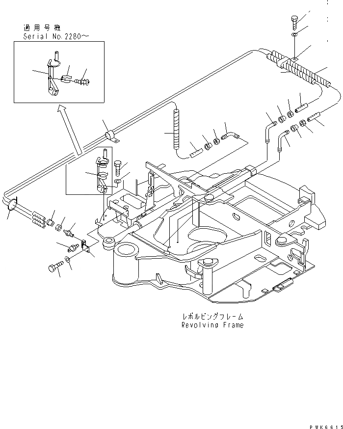
Запчасти Komatsu PC40MRX-1 ЛИНИЯ СМАЗКИ ОСНОВНАЯ РАМА И ЕЕ ЧАСТИ

Схема запчастей Komatsu PC40MRX-1 - ЛИНИЯ СМАЗКИ ОСНОВНАЯ РАМА И ЕЕ ЧАСТИ
1
2
3
3A
3B
3C
4
5
6
6
7
7
7
7
8
8
8
8
9
10
11
12
13
13A
13B
13C
14
14
15
16
17
18
19
FIT
1:1
100%

Артикул

Название

Примечание

Количество

1

22M-46-11311

TUBE

1

22M-46-11310

TUBE

2

22M-46-11320

TUBE

3

22M-46-11331

TUBE

3

22M-46-11330

TUBE

3A

08017-30705

CONDUIT

3B

08017-30707

CONDUIT

3C

08017-30708

CONDUIT

4

20R-46-11160

CONNECTOR

5

20R-46-11150

ELBOW

6

20T-46-81720

ELBOW

7

07831-00411

SLEEVE

8

07832-00410

NUT

9

07020-00000

FITTING

10

22M-46-11531

BRACKET

11

01010-81020

BOLT

12

01643-31032

WASHER

13

04434-51412

CLIP

13A

04435-51312

CLIP

13B

01010-81220

BOLT

13C

01643-31232

WASHER

14

22M-46-11572

BRACKET

14

22M-46-11571

BRACKET

15

01010-81225

BOLT

16

01643-31232

WASHER

17

08034-20414

BAND

18

203-54-63230

CLAMP

19

01023-70614

SCREW

Выбрано товаров: 28