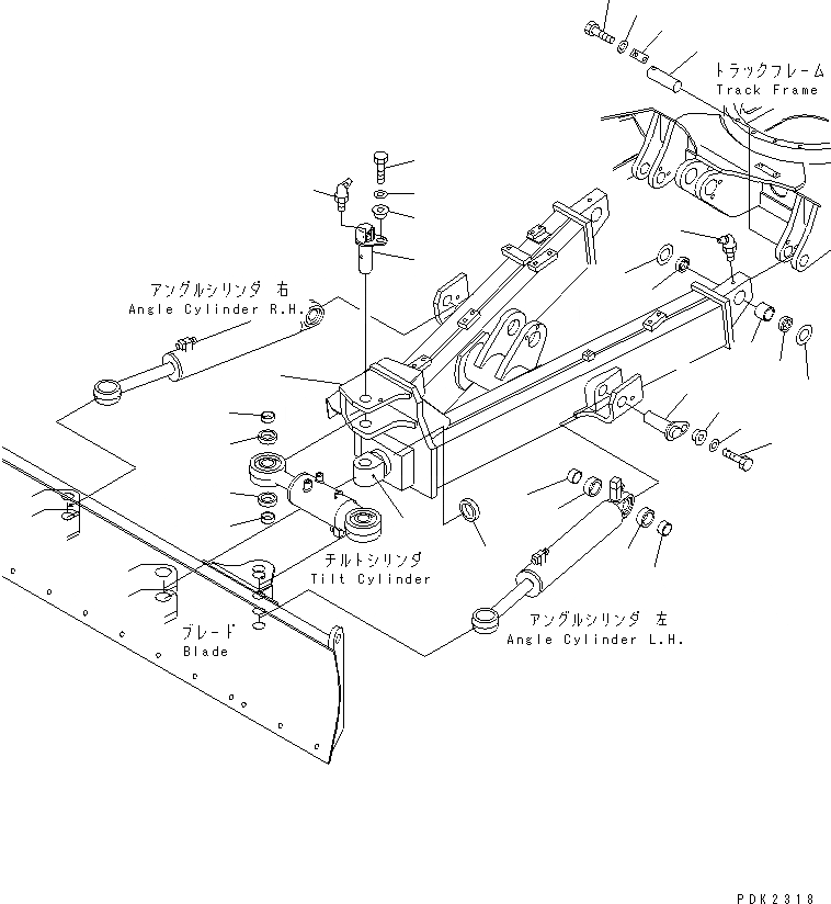
Запчасти Komatsu PC40R-8 ОТВАЛ (ДЛЯ PAT) (РАМА) РАБОЧЕЕ ОБОРУДОВАНИЕ

Схема запчастей Komatsu PC40R-8 - ОТВАЛ (ДЛЯ PAT) (РАМА) РАБОЧЕЕ ОБОРУДОВАНИЕ
1
2
3
4
5
6
6
7
8
9
10
11
11
12
13
14
15
16
17
17
18
18
19
20
21
22
23
23
24
24
FIT
1:1
100%

Артикул

Название

Примечание

Количество

|1

20T-910-0050

FRAME ASS'Y

1

FRAME

2

101-71-12140

PIN

3

101-71-12150

COLLAR

4

20T-71-81140

BUSHING

5

07020-00675

FITTING

6

07145-00035

SEAL

7

20S-70-71240

PIN

8

04082-00212

LOCK

9

01010-81230

BOLT

10

01643-31232

WASHER

11

20T-70-81720

SPACER¤ 1.0MM

|11

20R-70-11270

SPACER¤ 1.0MM

12

20T-910-8240

PIN

13

20S-70-31180

SPACER

14

01010-81230

BOLT

15

01643-31232

WASHER

16

07020-00675

FITTING

17

20U-910-1280

COLLAR

18

20U-910-1290

BUSHING

19

20U-910-1241

PIN

20

20S-70-31180

SPACER

21

01010-81230

BOLT

22

01643-31232

WASHER

23

104-72-21990

BUSHING

24

104-72-21960

COLLAR

Выбрано товаров: 26