Запчасти Komatsu PC410-5 РАМА (ДЛЯ ПРАВ. COVER) ЧАСТИ КОРПУСА

Схема запчастей Komatsu PC410-5 - РАМА (ДЛЯ ПРАВ. COVER) ЧАСТИ КОРПУСА
FIT
1:1
100%

Артикул

Название

Примечание

Количество

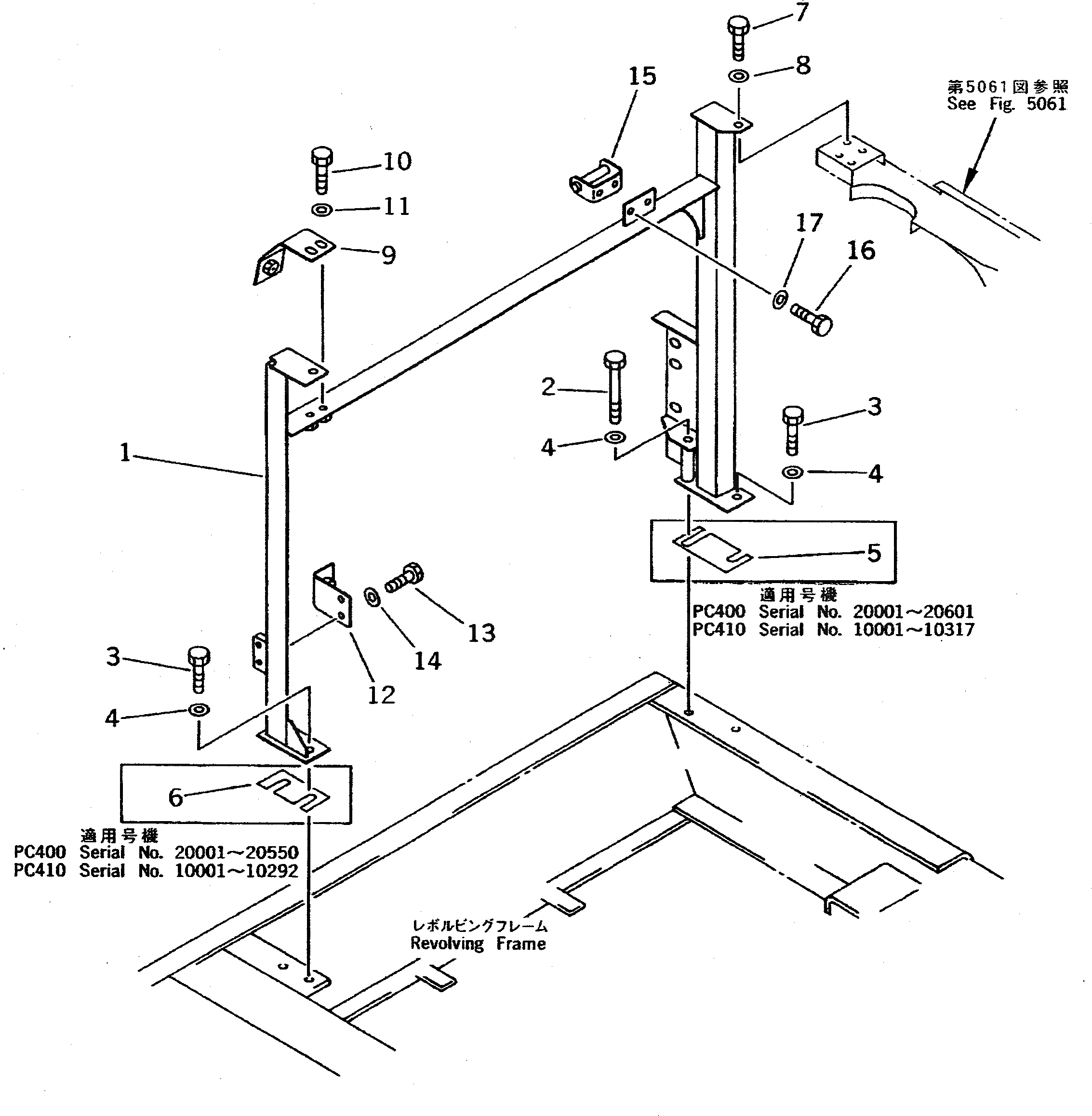
1

208-54-51721

FRAME,R.H.

2

01011-51230

BOLT

3

01010-51240

BOLT

4

01643-31232

WASHER

5

207-54-52550

PLATE

6

207-54-52560

PLATE

7

01010-51240

BOLT

|7

01010-51230

BOLT

8

01643-31232

WASHER

9

207-54-51560

PLATE

10

01010-51230

BOLT

11

01643-31232

WASHER

12

207-54-51570

PLATE

13

01010-51230

BOLT

14

01643-31232

WASHER

15

207-54-31870

BRACKET

16

01010-51025

BOLT

17

01643-31032

WASHER

Выбрано товаров: 18