Запчасти Komatsu PC450-6 F.O.P.S. КАБИНА ОПЕРАТОРА И СИСТЕМА УПРАВЛЕНИЯ

Схема запчастей Komatsu PC450-6 - F.O.P.S. КАБИНА ОПЕРАТОРА И СИСТЕМА УПРАВЛЕНИЯ
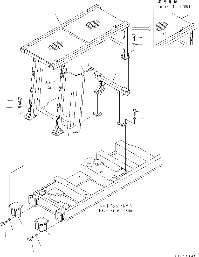
1
1
2
3
4
5
6
7
8
9
10
11
12
13
14
14
15
15
16
FIT
1:1
100%

Артикул

Название

Примечание

Количество

1

20Y-956-2112

GUARD

1

20Y-956-2111

GUARD

2

01010-81640

BOLT

2

01010-51640

BOLT

3

01643-31645

WASHER

4

01010-82050

BOLT

4

01010-52050

BOLT

5

01643-32060

WASHER

6

20Y-54-11770

GRIP

6

209-54-61750

GRIP

6

20Y-54-11770

GRIP

7

01010-81230

BOLT

7

01010-51230

BOLT

8

01643-31232

WASHER

9

20Y-956-2122

BRACKET

10

01010-82050

BOLT

10

01010-52050

BOLT

11

01643-32060

WASHER

12

207-956-6131

BRACKET,L.H.

13

207-956-6141

BRACKET,R.H.

14

01010-82050

BOLT

14

01010-52050

BOLT

15

01643-32060

WASHER

16

205-00-71710

PLATE, CAUTION,(ENGLISH)

16

205-00-71720

PLATE, CAUTION,(ARABIC)

16

205-00-71730

PLATE, CAUTION,(INDONESIAN)

16

205-00-71740

PLATE, CAUTION,(SPANISH)

16

205-00-71750

PLATE, CAUTION,(FRENCH)

16

205-00-71760

PLATE, CAUTION,(ITARIAN)

16

205-00-71770

PLATE, CAUTION,(JAPANESE)

16

205-00-71680

PLATE, CAUTION,(CHINESE)

16

205-00-71690

PLATE, CAUTION,(RUSSIAN)

16

205-00-74230

PLATE, CAUTION,(GERMAN)

Выбрано товаров: 33