Запчасти Komatsu PC450-6K-J ПЕРЕГОРОДКА. (КАБИНА) (ОТСЕК ДВИГАТЕЛЯ ПЕРЕДН.)(№-) ЧАСТИ КОРПУСА

Схема запчастей Komatsu PC450-6K-J - ПЕРЕГОРОДКА. (КАБИНА) (ОТСЕК ДВИГАТЕЛЯ ПЕРЕДН.)(№-) ЧАСТИ КОРПУСА
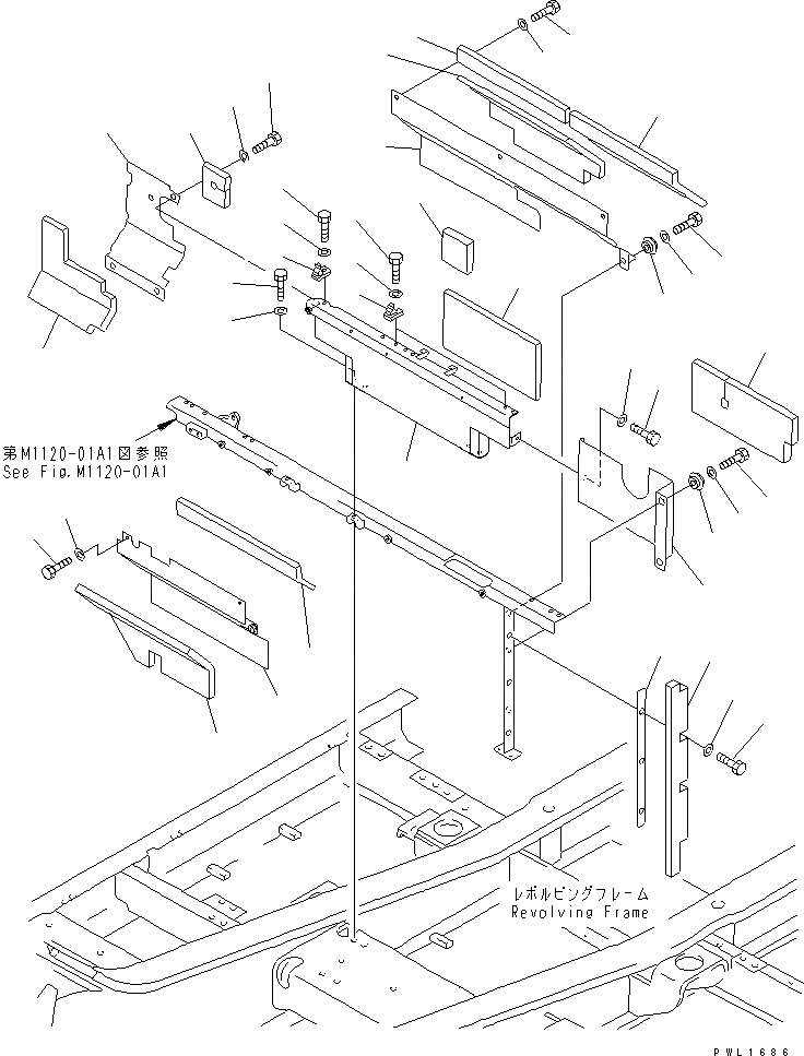
1
2
3
4
5
6
7
8
9
10
11
11
12
13
14
15
16
17
18
19
20
21
21
22
23
24
25
26
27
28
29
30
31
32
33
34
35
36
37
38
39
FIT
1:1
100%

Артикул

Название

Примечание

Количество

1

208-54-61820

COVER

2

207-54-62520

SHEET

3

207-54-62530

SHEET

4

20Y-54-12320

CATCH

5

01010-81230

BOLT

6

01643-31232

WASHER

7

01010-81230

BOLT

8

01643-31232

WASHER

9

208-54-61850

COVER

10

208-54-62651

SHEET

11

01010-81230

BOLT

12

01643-31232

WASHER

13

203-54-62670

COLLAR

14

175-54-34170

WASHER

15

208-54-61840

COVER

16

208-54-62440

SHEET

17

208-54-62630

SHEET

18

208-54-62640

SHEET

19

01010-81230

BOLT

20

01010-81225

BOLT

21

01643-31232

WASHER

22

203-54-62670

COLLAR

23

208-54-62560

COVER

24

207-54-62480

SHEET

25

01010-81230

BOLT

26

01643-31232

WASHER

27

208-54-61830

COVER

28

208-54-62450

SHEET

29

208-54-62461

SHEET

30

01010-81230

BOLT

31

01643-31232

WASHER

32

20Y-54-12320

CATCH

33

01010-81230

BOLT

34

01643-31232

WASHER

35

208-54-62591

COVER

36

208-54-62471

SHEET

37

208-54-62530

SHEET

38

01010-81230

BOLT

39

01643-31232

WASHER

Выбрано товаров: 39