Запчасти Komatsu PC450-6K-KE РАМА (КАБИНА) ЧАСТИ КОРПУСА

Схема запчастей Komatsu PC450-6K-KE - РАМА (КАБИНА) ЧАСТИ КОРПУСА
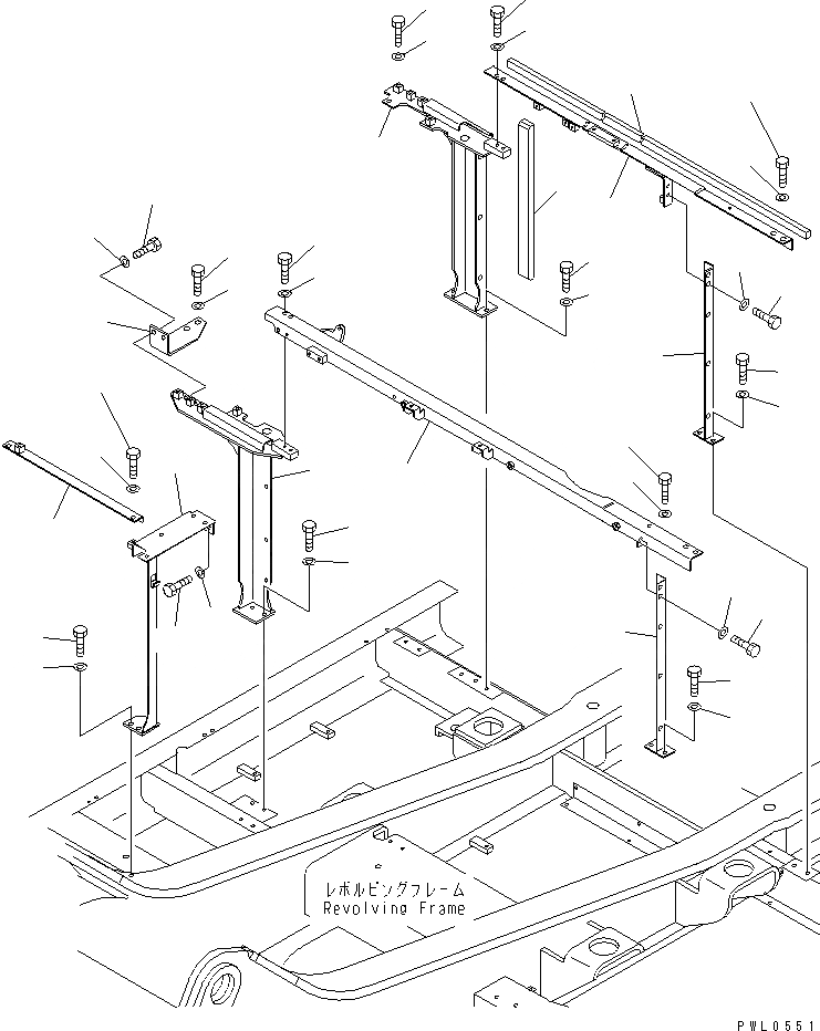
1
2
3
4
5
6
7
8
9
10
10
11
11
11
11
12
12
12
12
13
14
15
16
17
18
19
19
20
20
21
22
23
23
24
24
25
26
26
27
27
28
29
30
FIT
1:1
100%

Артикул

Название

Примечание

Количество

1

208-54-61511

FRAME

2

01010-81235

BOLT

3

01643-31232

WASHER

4

208-54-61521

FRAME

5

207-54-61590

SHEET

6

01010-81235

BOLT

7

01643-31232

WASHER

8

01010-81235

BOLT

9

01643-31232

WASHER

10

207-54-61531

FRAME

11

01010-81230

BOLT

12

01643-31232

WASHER

13

208-54-61540

BRACKET

14

01010-81230

BOLT

15

01643-31232

WASHER

16

01010-81230

BOLT

17

175-54-34170

WASHER

18

208-54-61551

FRAME

19

01010-81230

BOLT

20

01643-31232

WASHER

21

208-54-61970

FRAME

22

207-54-61580

SHEET

23

01010-81230

BOLT

24

01643-31232

WASHER

25

208-54-61571

FRAME

26

01010-81230

BOLT

27

01643-31232

WASHER

28

207-54-61610

FRAME

29

01010-81230

BOLT

30

01643-31232

WASHER

Выбрано товаров: 30