Запчасти Komatsu PC450-6K-KE ПЕРЕГОРОДКА. (КАБИНА) (НАСОС И РАДИАТОР) ЧАСТИ КОРПУСА

Схема запчастей Komatsu PC450-6K-KE - ПЕРЕГОРОДКА. (КАБИНА) (НАСОС И РАДИАТОР) ЧАСТИ КОРПУСА
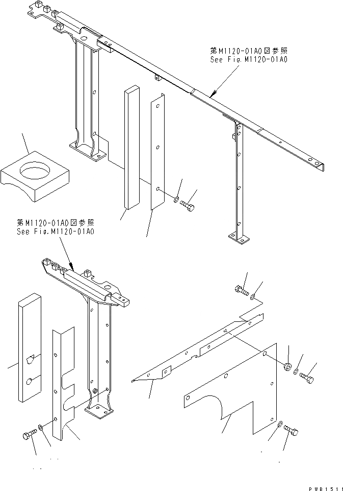
1
2
3
4
5
5
6
6
7
8
9
10
11
12
13
14
15
16
FIT
1:1
100%

Артикул

Название

Примечание

Количество

1

208-54-61880

COVER

2

01010-81225

BOLT

3

01643-31232

WASHER

4

208-54-61870

COVER

5

01010-81225

BOLT

6

01643-31232

WASHER

7

203-54-62670

COLLAR

8

208-54-62481

COVER

9

208-54-62491

SHEET

10

01010-81230

BOLT

11

01643-31232

WASHER

12

208-54-62510

COVER

13

208-54-62520

SHEET

14

01010-81230

BOLT

15

01643-31232

WASHER

16

208-54-62210

SHEET

Выбрано товаров: 16