Запчасти Komatsu PC450-6K КОНДИЦ. ВОЗДУХА В СБОРЕ(№K-K999) КАБИНА ОПЕРАТОРА И СИСТЕМА УПРАВЛЕНИЯ

Схема запчастей Komatsu PC450-6K - КОНДИЦ. ВОЗДУХА В СБОРЕ(№K-K999) КАБИНА ОПЕРАТОРА И СИСТЕМА УПРАВЛЕНИЯ
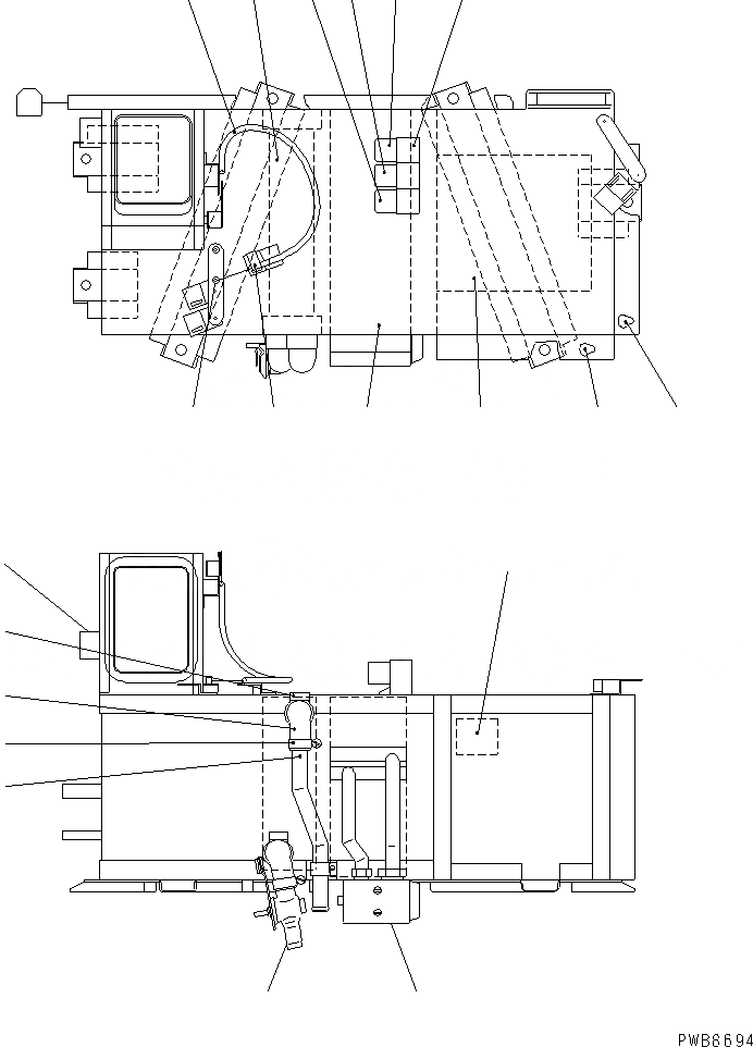
1
2
3
4
5
6
7
8
9
10
11
11
12
13
14
15
16
17
18
19
FIT
1:1
100%

Артикул

Название

Примечание

Количество

|1

20Y-979-K353

UNIT ASS'Y

|1

20Y-979-K352

UNIT ASS'Y

1

20Y-979-K110

RADIATOR ASS'Y

2

206-979-K121

EVAPORATOR

|2

206-979-K120

EVAPORATOR

3

206-979-K130

MOTOR

4

206-979-K140

FILTER

5

206-979-K150

FILTER

6

206-979-K160

VALVE

7

206-979-K170

CONNECTOR

8

20Y-979-K260

CLIP

9

206-979-K180

ELBOW

10

206-979-K190

CLIP

11

206-979-K210

RELAY

|11

206-979-K210

RELAY

12

206-979-K220

HOLDER

|12

206-979-K220

HOLDER

13

206-979-K320

CLIP

14

206-979-K230

RELAY

15

206-979-K240

VALVE

16

206-979-K310

CABLE

17

20Y-977-K460

CLIP

18

21P-979-K350

CAP

19

206-979-K410

THERMOSTAT

Выбрано товаров: 24