Запчасти Komatsu PC450-7K-E0 ОХЛАЖД-Е (РАДИАТОР И РАМА) СИСТЕМА ОХЛАЖДЕНИЯ

Схема запчастей Komatsu PC450-7K-E0 - ОХЛАЖД-Е (РАДИАТОР И РАМА) СИСТЕМА ОХЛАЖДЕНИЯ
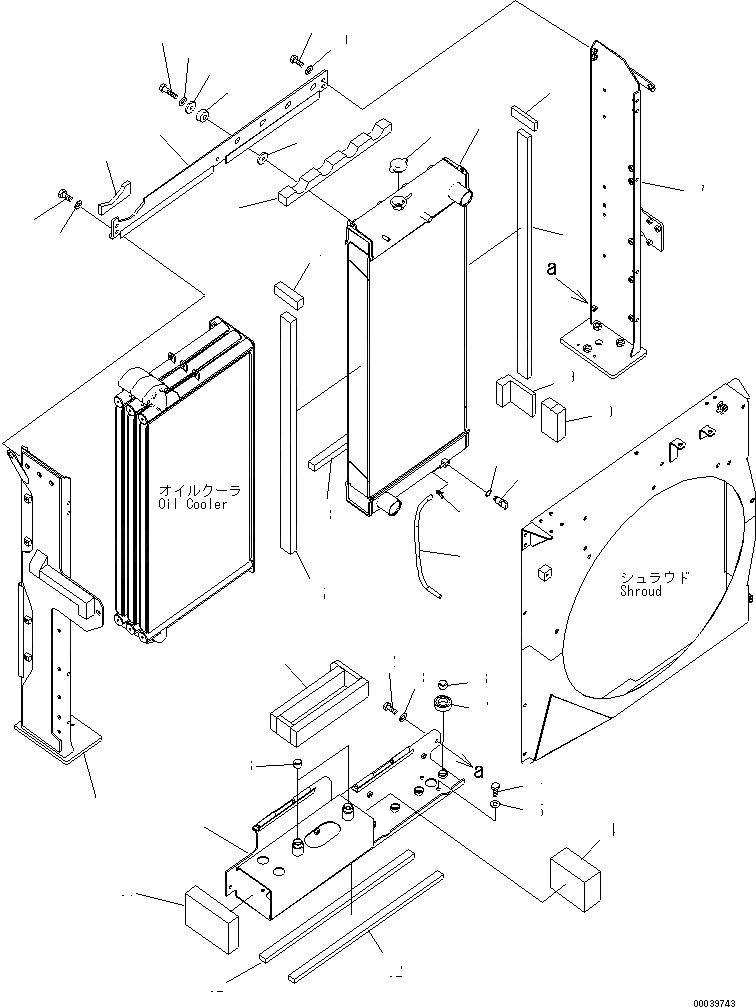
1
2
3
4
5
6
7
8
9
10
11
11
12
13
14
15
16
17
18
19
19
20
20
21
22
23
24
25
26
26
27
28
29
30
31
32
32
33
34
35
FIT
1:1
100%

Артикул

Название

Примечание

Количество

1

208-03-75110

CORE ASS'Y

2

20Y-03-22110

CAP

3

205-03-71230

HOSE

4

20Y-03-11330

CLIP

5

205-03-62660

PLUG

6

07000-11007

O-RING

7

208-03-75930

SEAL

8

208-03-75940

SEAL

9

208-03-71840

SEAL

10

195-03-41380

CUSHION

11

207-03-75590

PLATE

12

01010-81050

BOLT

13

01643-31032

WASHER

14

208-03-75580

SEAL

15

208-03-75590

SEAL

16

208-03-75221

FRAME

17

208-03-75230

FRAME

18

208-03-75250

FRAME

19

01010-81225

BOLT

20

01643-31232

WASHER

21

208-03-75240

FRAME

22

01010-81025

BOLT

23

01643-31032

WASHER

24

01010-81020

BOLT

25

01643-31032

WASHER

26

22B-03-12590

CUSHION

27

208-03-71380

CUSHION

28

208-03-75890

SEAL

29

208-03-71490

SEAL

30

208-03-71780

SEAL

31

208-03-75910

SEAL

32

208-03-71821

SEAL

33

208-03-75920

SEAL

34

208-03-75680

SEAL

35

208-03-75690

SEAL

Выбрано товаров: 35