Запчасти Komatsu PC450-7K ПЕРЕГОРОДКА. (КАБИНА) (/) ЧАСТИ КОРПУСА

Схема запчастей Komatsu PC450-7K - ПЕРЕГОРОДКА. (КАБИНА) (/) ЧАСТИ КОРПУСА
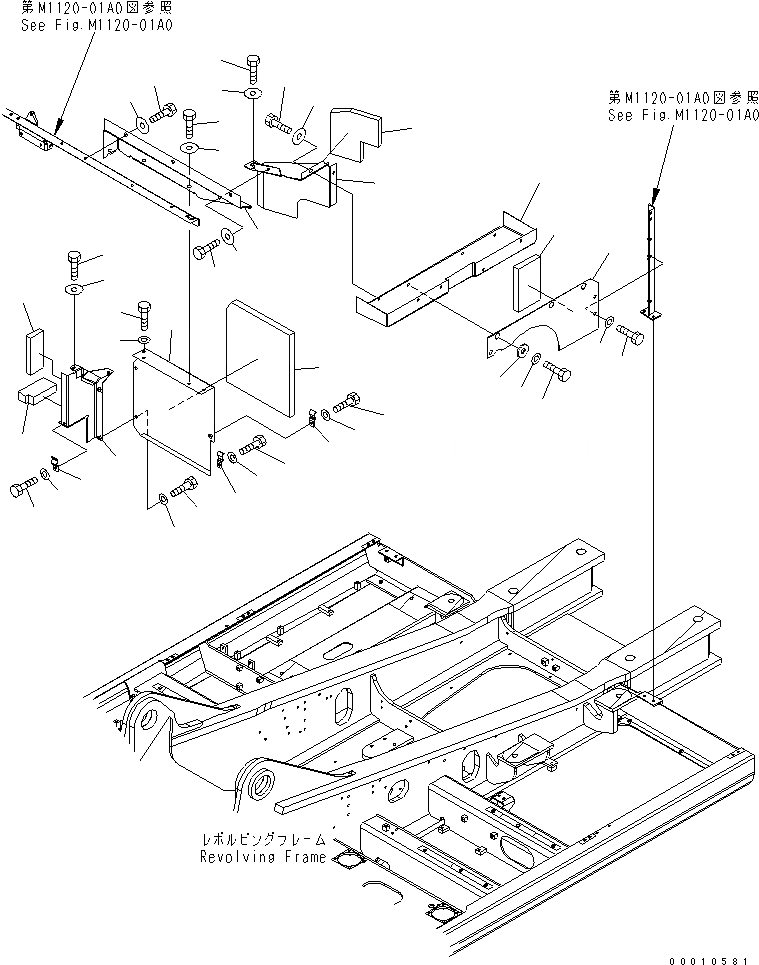
1
2
3
4
5
5
6
6
7
8
8
8
8
9
9
9
9
10
11
12
12
13
13
14
15
16
17
18
19
20
21
22
23
24
25
25
26
26
27
28
29
FIT
1:1
100%

Артикул

Название

Примечание

Количество

1

208-54-71711

COVER

2

208-54-71721

COVER

3

208-54-73410

SHEET

4

203-54-62670

COLLAR

5

01010-81230

BOLT

6

01643-31232

WASHER

7

208-54-71732

COVER

8

01010-81230

BOLT

9

175-54-34170

WASHER

10

208-54-71751

COVER

11

208-54-73260

SHEET

12

01010-81230

BOLT

13

175-54-34170

WASHER

14

208-54-71661

COVER

15

208-54-73281

SHEET

16

208-54-73391

SHEET

17

20Y-54-27761

CATCH

18

01010-81220

BOLT

19

01643-31232

WASHER

20

208-54-71761

COVER

21

208-54-73271

SHEET

22

20Y-54-27761

CATCH

23

01010-81220

BOLT

24

01643-31232

WASHER

25

01010-81220

BOLT

26

01643-31232

WASHER

27

01010-81230

BOLT

28

01643-31232

WASHER

29

20Y-54-27761

CATCH

Выбрано товаров: 29