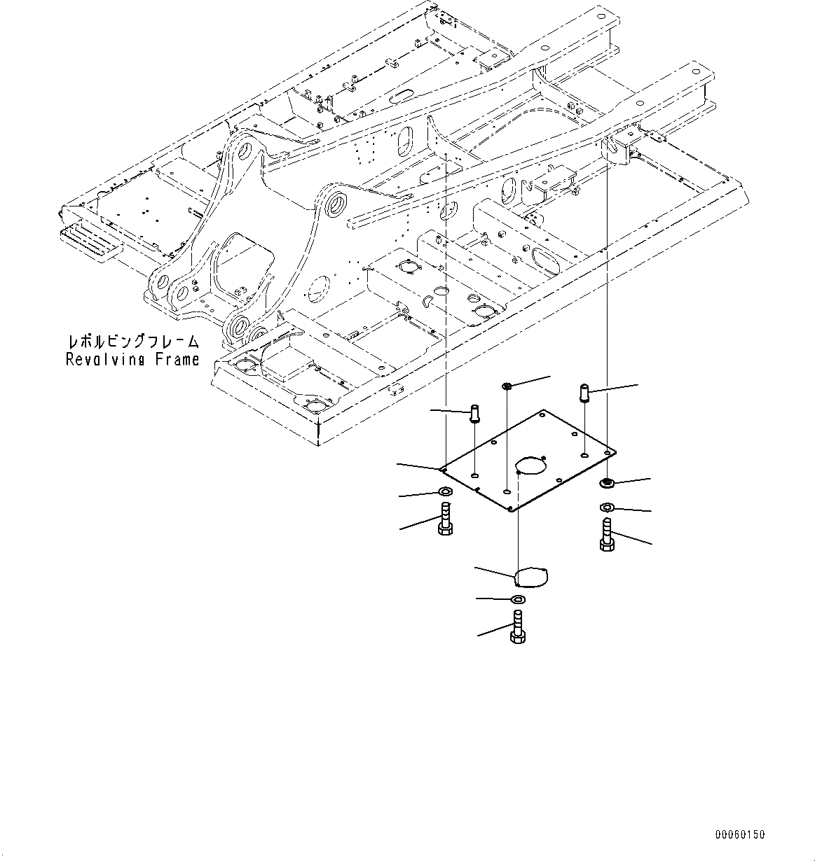
Запчасти Komatsu PC450-8 НИЖН. КРЫШКА, (/) (№7-7) НИЖН. КРЫШКА, УСИЛ.ENED

Схема запчастей Komatsu PC450-8 - НИЖН. КРЫШКА, (/) (№7-7) НИЖН. КРЫШКА, УСИЛ.ENED
1
2
3
2
5
4
9
11
10
8
7
6
FIT
1:1
100%

Артикул

Название

Примечание

Количество

1

208-54-78360

Cover

2

22U-54-24760

Grommet

3

08037-03614

Grommet

4

01010-81230

Bolt

5

175-54-34170

Washer

6

208-54-57180

Collar

7

01010-81230

Bolt

8

01643-31232

Washer

9

207-54-51440

Plate

10

01010-81230

Bolt

11

01643-31232

Washer

Выбрано товаров: 11