Запчасти Komatsu PC450-8 ЗВУК. СИГНАЛ., (№78-) ЗВУК. СИГНАЛ.

Схема запчастей Komatsu PC450-8 - ЗВУК. СИГНАЛ., (№78-) ЗВУК. СИГНАЛ.
4
3
3
4
1
2
FIT
1:1
100%

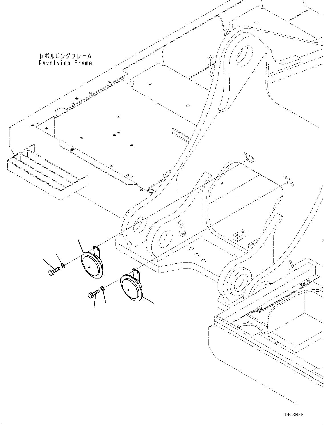
Артикул

Название

Примечание

Количество

1

208-06-71380

Horn

2

208-06-71390

Horn

3

01010-80825

Bolt

4

01643-30823

Washer

Выбрано товаров: 4