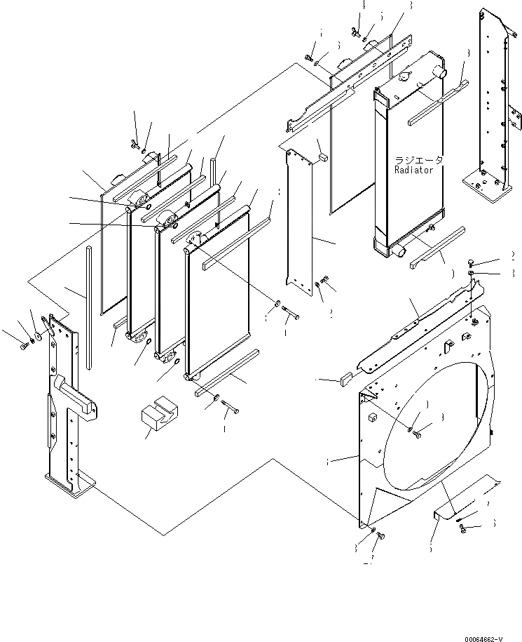
Запчасти Komatsu PC450-8 ОХЛАЖД-Е (МАСЛООХЛАДИТЕЛЬ И КОЖУХ) (№K-) C СИСТЕМА ОХЛАЖДЕНИЯ

Схема запчастей Komatsu PC450-8 - ОХЛАЖД-Е (МАСЛООХЛАДИТЕЛЬ И КОЖУХ) (№K-) C СИСТЕМА ОХЛАЖДЕНИЯ
1
2
3
4
5
6
6
6
6
7
8
9
10
10
11
12
13
13
14
14
14
14
15
16
17
18
19
20
21
22
23
24
25
26
27
28
29
30
31
32
33
34
35
36
37
38
39
40
41
FIT
1:1
100%

Артикул

Название

Примечание

Количество

1

208-03-71860

SEAL

2

208-03-75140

OIL COOLER

3

208-03-75150

OIL COOLER

4

208-03-75160

OIL COOLER

5

208-03-75670

SEAL

6

208-03-75870

SEAL

7

208-03-76120

FRAME

8

208-03-77280

SEAL

9

208-03-77320

SEAL

10

01011-81205

BOLT

11

01010-81020

BOLT

12

01643-31032

WASHER

13

01643-31232

WASHER

14

07000-13045

O-RING

15

01010-81225

BOLT

16

01643-31232

WASHER

17

01010-81040

BOLT

18

01643-31032

WASHER

19

124-54-26540

WASHER

20

208-03-75450

NET

21

01434-10616

BOLT WING

22

01643-30623

WASHER

23

208-03-75440

NET

24

01434-10616

BOLT WING

25

01643-30623

WASHER

26

208-03-77390

SHROUD

27

01010-81020

BOLT

28

01643-31032

WASHER

29

01010-81030

BOLT

30

01643-31032

WASHER

31

208-03-76381

COVER

|31

208-03-76380

COVER

32

01010-81030

BOLT

33

01643-31032

WASHER

34

208-03-77360

SEAL

35

208-03-77141

COVER

|35

208-03-77140

COVER

36

01010-81020

BOLT

37

01643-31032

WASHER

38

208-03-77250

SEAL

39

208-03-77350

SEAL

40

208-03-75970

SEAL

41

208-03-75980

SEAL

Выбрано товаров: 43