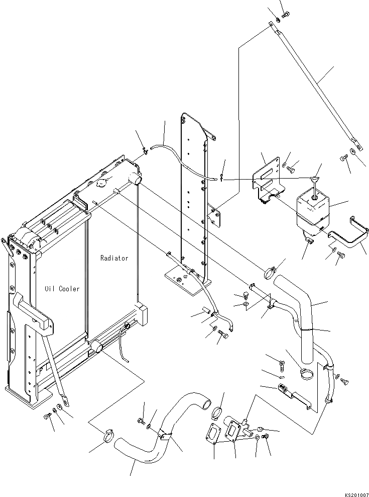
Запчасти Komatsu PC450-8 ОХЛАЖД-Е (СИСТЕМА ТРУБ РАДИАТОРА И ВТОРИЧН. БАК) C СИСТЕМА ОХЛАЖДЕНИЯ

Схема запчастей Komatsu PC450-8 - ОХЛАЖД-Е (СИСТЕМА ТРУБ РАДИАТОРА И ВТОРИЧН. БАК) C СИСТЕМА ОХЛАЖДЕНИЯ
6
5
4
7
5
31
35
32
40
41
34
39
38
39
1
2
3
16
15
18
19
17
16
9
8
11
10
12
20
21
23
22
29
30
14
33
37
36
28
26
14
27
25
13
24
FIT
1:1
100%

Артикул

Название

Примечание

Количество

1

01010-81645

BOLT

|1

01010-81640

BOLT

2

01643-31645

WASHER

3

21T-54-16150

WASHER

4

207-03-71211

STAY

5

01010-81635

BOLT

6

01643-31645

WASHER

7

21T-54-16150

WASHER

8

208-03-75390

CONNECTOR

9

207-03-31271

GASKET

10

01010-81025

BOLT

11

01643-31032

WASHER

12

07042-00312

PLUG

13

208-03-75470

HOSE

14

07289-00070

CLAMP

15

208-03-75481

HOSE

16

07289-00070

CLAMP

17

207-03-51530

CLIP

18

01010-81225

BOLT

19

01643-31232

WASHER

20

6152-51-5520

SPACER

21

04434-51710

CLIP

22

01010-81070

BOLT

23

01643-31032

WASHER

24

134-03-61410

BAND

25

208-03-72370

BRACKET

|25

208-03-75380

BRACKET

26

01026-A1230

BOLT

27

208-03-72310

GROMMET

28

04434-53212

CLIP

29

01010-81225

BOLT

30

01643-31232

WASHER

31

419-03-21320

TANK ASSEMBLY

32

421-03-22170

CAP

33

08055-00282

CONNECTOR

34

208-03-75370

BRACKET

35

17A-03-14130

BAND

36

01010-81020

BOLT

37

01643-31032

WASHER

38

208-03-75830

HOSE

39

206-03-43340

CLIP

40

01010-81225

BOLT

41

01643-31232

WASHER

Выбрано товаров: 43