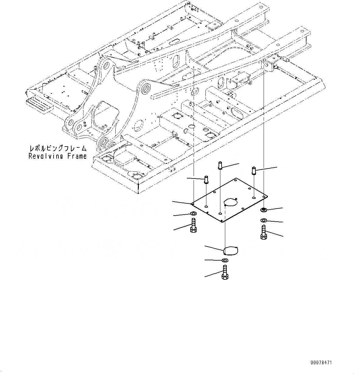
Запчасти Komatsu PC450-8R НИЖН. КРЫШКА, (/) (№7-) НИЖН. КРЫШКА, УСИЛ.ENED

Схема запчастей Komatsu PC450-8R - НИЖН. КРЫШКА, (/) (№7-) НИЖН. КРЫШКА, УСИЛ.ENED
1
2
2
2
4
3
8
10
9
7
6
5
FIT
1:1
100%

Артикул

Название

Примечание

Количество

1

208-54-78360

Cover

2

22U-54-24760

Grommet

3

01010-81230

Bolt

4

175-54-34170

Washer

5

208-54-57180

Collar

6

01010-81230

Bolt

7

01643-31232

Washer

8

207-54-51440

Plate

9

01010-81230

Bolt

10

01643-31232

Washer

Выбрано товаров: 10