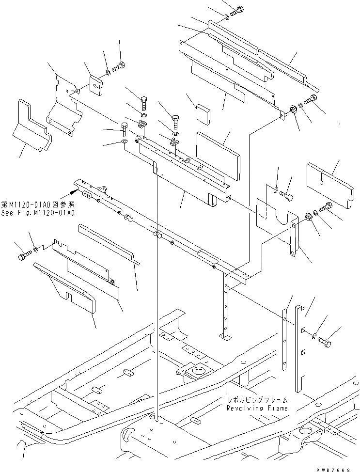
Запчасти Komatsu PC450LC-6 ПЕРЕГОРОДКА. (КАБИНА) (ОТСЕК ДВИГАТЕЛЯ ПЕРЕДН.)(№-) ЧАСТИ КОРПУСА

Схема запчастей Komatsu PC450LC-6 - ПЕРЕГОРОДКА. (КАБИНА) (ОТСЕК ДВИГАТЕЛЯ ПЕРЕДН.)(№-) ЧАСТИ КОРПУСА
1
2
3
4
5
6
7
8
9
10
11
11
12
13
14
15
16
17
18
19
19A
20
20
21
22
23
24
25
26
27
28
29
30
31
32
33
34
35
36
37
38
FIT
1:1
100%

Артикул

Название

Примечание

Количество

1

207-54-62512

COVER

2

207-54-62520

SHEET

3

207-54-62530

SHEET

4

20Y-54-12320

CATCH

5

01010-81230

BOLT

6

01643-31232

WASHER

7

01010-81230

BOLT

8

01643-31232

WASHER

9

208-54-62543

COVER

10

208-54-62651

SHEET

11

01010-81230

BOLT

12

01643-31232

WASHER

13

203-54-62670

COLLAR

14

175-54-34170

WASHER

15

208-54-62572

COVER

16

208-54-62440

SHEET

17

208-54-62630

SHEET

18

208-54-62640

SHEET

19

01010-81230

BOLT

19A

01010-81225

BOLT

19A

01010-81230

BOLT

20

01643-31232

WASHER

21

203-54-62670

COLLAR

22

208-54-62560

COVER

23

207-54-62480

SHEET

24

01010-81230

BOLT

25

01643-31232

WASHER

26

208-54-62581

COVER

27

208-54-62450

SHEET

28

208-54-62461

SHEET

29

01010-81230

BOLT

30

01643-31232

WASHER

31

20Y-54-12320

CATCH

32

01010-81230

BOLT

33

01643-31232

WASHER

34

208-54-62591

COVER

35

208-54-62471

SHEET

36

208-54-62530

SHEET

37

01010-81230

BOLT

38

01643-31232

WASHER

Выбрано товаров: 40