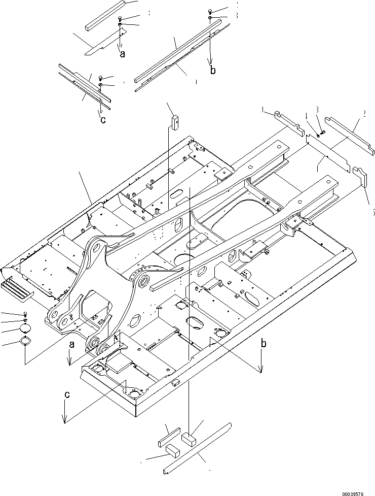
Запчасти Komatsu PC450LC-7E0 ОСНОВНАЯ РАМА (С ЗАЩИТА НИЖНЕЙ ЧАСТИ) (/) ОСНОВНАЯ РАМА И ЕЕ ЧАСТИ

Схема запчастей Komatsu PC450LC-7E0 - ОСНОВНАЯ РАМА (С ЗАЩИТА НИЖНЕЙ ЧАСТИ) (/) ОСНОВНАЯ РАМА И ЕЕ ЧАСТИ
1
2
3
4
5
6
6
7
8
9
10
11
12
13
14
15
16
17
18
19
20
21
22
23
24
25
26
27
FIT
1:1
100%

Артикул

Название

Примечание

Количество

1

208-46-71800

FRAME

2

205-30-71181

COVER

3

205-30-71191

GASKET

4

01010-81230

BOLT

5

01643-31232

WASHER

6

208-46-75690

SHEET

7

208-46-75670

SHEET

8

208-46-75680

SHEET

9

208-03-71711

SEAL

10

208-46-73310

SHEET

11

208-46-71410

COVER

12

208-46-71420

SHEET

13

01010-81225

BOLT

14

01643-31232

WASHER

15

208-46-72410

SHEET

|$28

20Y-46-42412

COVER

16

COVER

17

20Y-46-42232

SEAL

18

01010-81035

BOLT

19

01643-31032

WASHER

|$36

20Y-46-42427

COVER

20

COVER

21

20Y-46-42253

SEAL

22

01010-81025

BOLT

23

01643-31032

WASHER

|$44

207-46-71543

COVER

24

COVER

25

207-46-71561

SEAL

26

01010-81035

BOLT

27

01643-31032

WASHER

Выбрано товаров: 30