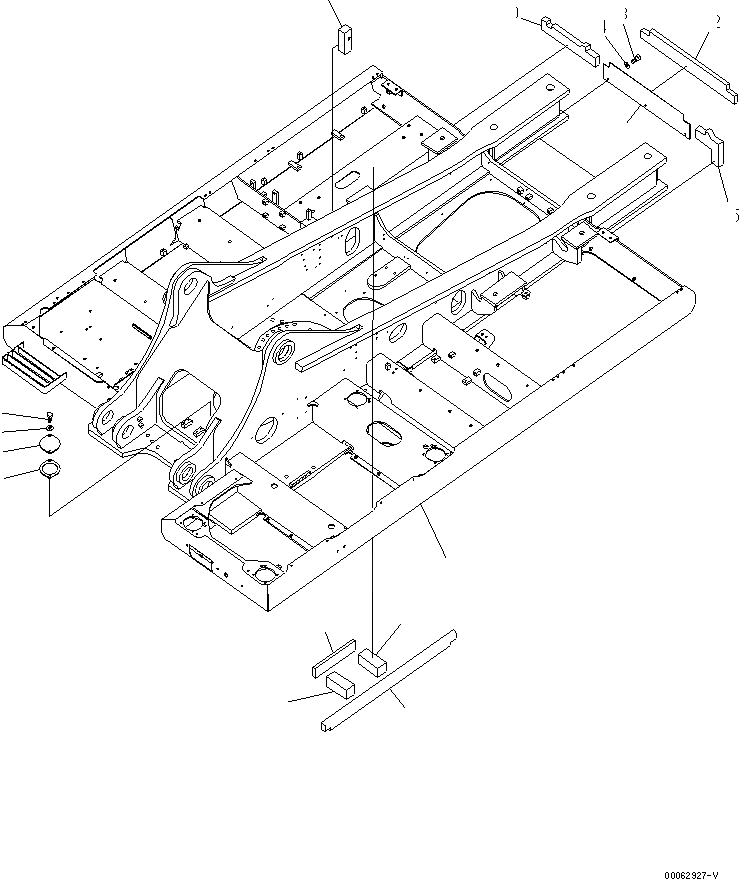
Запчасти Komatsu PC450LCHD-8 ОСНОВНАЯ РАМА (/) (СПЕЦ-Я ДЛЯ РАЗРУШ. ЗДАНИЙ) (№K-K9) J ОСНОВНАЯ РАМА И ЕЕ ЧАСТИ

Схема запчастей Komatsu PC450LCHD-8 - ОСНОВНАЯ РАМА (/) (СПЕЦ-Я ДЛЯ РАЗРУШ. ЗДАНИЙ) (№K-K9) J ОСНОВНАЯ РАМА И ЕЕ ЧАСТИ
1
2
3
4
5
6
6
7
8
9
10
11
12
13
14
15
FIT
1:1
100%

Артикул

Название

Примечание

Количество

1

208-46-KA951

FRAME

2

205-30-71181

COVER

3

205-30-71191

GASKET

4

01010-81230

BOLT

5

01643-31232

WASHER

6

208-46-75690

SHEET

7

208-46-75670

SHEET

8

208-46-75680

SHEET

9

208-03-71711

SEAL

10

208-46-73310

SHEET

11

208-46-71410

COVER

12

208-46-71420

SHEET

13

01010-81225

BOLT

14

01643-31232

WASHER

15

208-46-72410

SHEET

Выбрано товаров: 15