Запчасти Komatsu PC450LCHD-8 ЛЕВ. ДВЕРЬ (КАБИНА) (№K-K9) M ЧАСТИ КОРПУСА

Схема запчастей Komatsu PC450LCHD-8 - ЛЕВ. ДВЕРЬ (КАБИНА) (№K-K9) M ЧАСТИ КОРПУСА
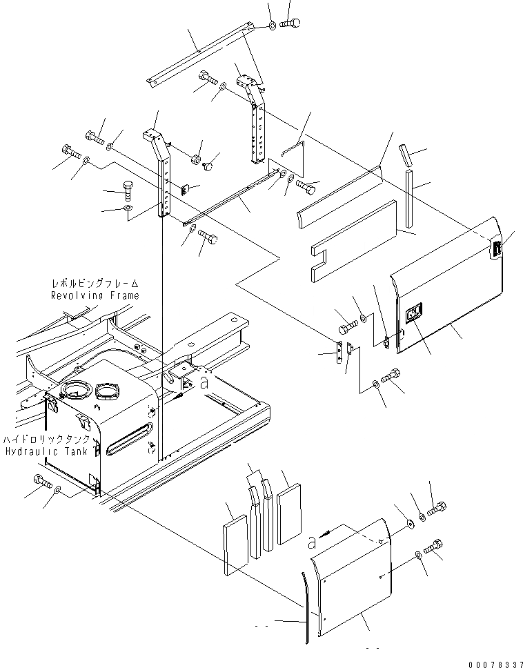
1
2
3
4
5
6
7
7
8
8
9
10
11
12
13
14
15
16
17
18
19
20
21
22
23
24
25
26
27
28
29
30
31
32
33
34
35
36
37
38
38
39
40
41
41
41
42
42
42
FIT
1:1
100%

Артикул

Название

Примечание

Количество

1

208-54-78640

FRAME

2

208-54-77852

FRAME

3

208-54-71380

FRAME

4

01010-81225

BOLT

5

01643-31232

WASHER

6

208-54-78650

PLATE

7

01010-81225

BOLT

8

01643-31232

WASHER

9

22U-54-25170

WASHER

10

20Y-54-61470

PLATE

11

01010-81225

BOLT

12

01643-31232

WASHER

13

20Y-54-28170

BRACKET

14

01010-81225

BOLT

15

01643-31232

WASHER

16

205-54-51971

DOVETAIL

17

01010-80616

BOLT

18

01643-30623

WASHER

19

20Y-54-11611

STOPPER

20

01580-11008

NUT

21

208-54-71212

COVER

22

198-54-41982

LOCK ASSEMBLY (WELDED)

23

20Y-54-63414

HINGE (WELDED)

24

01010-81225

BOLT

25

01643-31232

WASHER

26

205-54-53550

DOVE TAIL

27

01010-80612

BOLT

28

01643-30623

WASHER

29

20Y-54-29231

BAR

30

208-54-73710

SHEET

31

208-54-73720

SHEET

32

208-54-73821

SHEET

33

208-54-73830

SHEET

34

01010-81230

BOLT

35

01643-31232

WASHER

36

208-54-71240

COVER

37

208-54-73131

SHEET

38

208-54-73960

SHEET

39

207-54-78851

SEAL

40

203-54-62670

COLLAR

41

01010-81230

BOLT

42

01643-31232

WASHER

Выбрано товаров: 42