Запчасти Komatsu PC45MR-1 ОСНОВН. КОНСТРУКЦИЯ (СОЛЕНОИДНЫЙ КЛАПАН¤БЛОК И СОЕД-Е) (ДЛЯ -АКТУАТОР НАВЕСН. ОБОРУД И ПОВОРОТН. ОТВАЛ С ИЗМ. УГЛОМ) КАБИНА ОПЕРАТОРА И СИСТЕМА УПРАВЛЕНИЯ

Схема запчастей Komatsu PC45MR-1 - ОСНОВН. КОНСТРУКЦИЯ (СОЛЕНОИДНЫЙ КЛАПАН¤БЛОК И СОЕД-Е) (ДЛЯ -АКТУАТОР НАВЕСН. ОБОРУД И ПОВОРОТН. ОТВАЛ С ИЗМ. УГЛОМ) КАБИНА ОПЕРАТОРА И СИСТЕМА УПРАВЛЕНИЯ
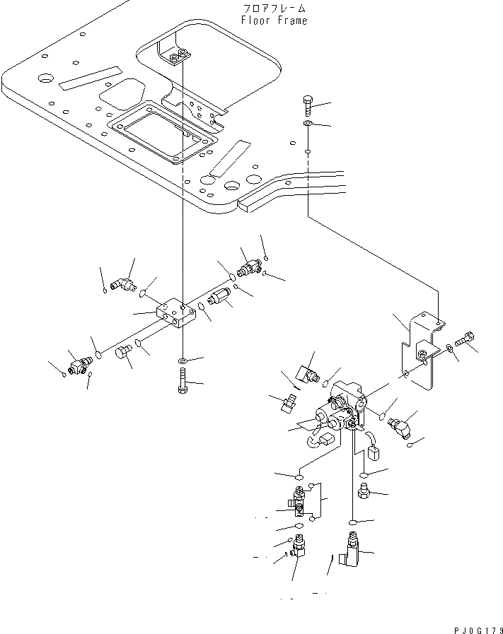
1
2
3
4
5
6
7
8
9
10
11
12
13
14
14
15
16
17
18
19
20
20
21
21
21
21
22
23
24
25
26
27
28
29
29
29
29
29
30
30
30
30
30
30
FIT
1:1
100%

Артикул

Название

Примечание

Количество

|1

20U-60-32231

VALVE ASS'Y

1

20U-60-32250

SOLENOID ASS'Y

2

07002-11023

O-RING

3

07040-11007

PLUG

4

01010-81020

BOLT

5

01643-31032

WASHER

6

22M-54-11845

BRACKET

7

01010-81025

BOLT

8

01643-31032

WASHER

9

22C-62-33110

BLOCK

10

01010-80840

BOLT

11

01643-30823

WASHER

12

20F-61-12460

ELBOW

13

114-40-48481

JOINT

14

07002-11423

O-RING

15

21W-62-42490

ELBOW

16

07002-11423

O-RING

17

02896-11009

O-RING

18

22M-62-16120

ELBOW

19

22N-973-1320

ELBOW

20

07002-11423

O-RING

21

02896-11008

O-RING

22

22M-62-12220

ELBOW

23

07002-11423

O-RING

24

07040-11409

PLUG

25

20U-62-41890

NIPPLE

26

11Y-62-12330

TEE

27

11Y-62-12330

TEE

28

02782-10210

ELBOW

29

07002-11423

O-RING

30

02896-11008

O-RING

Выбрано товаров: 31