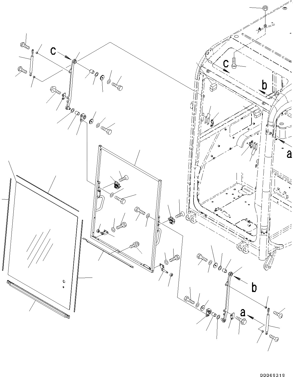
Запчасти Komatsu PC45MR-3 КАБИНА, С ЗАДН.VIEW MIRROR, ЛЕВ. И ПРАВ., КОНДИЦ. ВОЗДУХА, БЕЗ НАВЕСН. ОБОРУД КЛАПАН, ПЕРЕДН. ОКНА (№-) КАБИНА, С ЗАДН.VIEW MIRROR, ЛЕВ. И ПРАВ., КОНДИЦ. ВОЗДУХА, БЕЗ НАВЕСН. ОБОРУД КЛАПАН

Схема запчастей Komatsu PC45MR-3 - КАБИНА, С ЗАДН.VIEW MIRROR, ЛЕВ. И ПРАВ., КОНДИЦ. ВОЗДУХА, БЕЗ НАВЕСН. ОБОРУД КЛАПАН, ПЕРЕДН. ОКНА (№-) КАБИНА, С ЗАДН.VIEW MIRROR, ЛЕВ. И ПРАВ., КОНДИЦ. ВОЗДУХА, БЕЗ НАВЕСН. ОБОРУД КЛАПАН
4
23
24
25
25
30
29
15
34
35
27
21
14
12
11
10
6
5
1
31
30
29
24
23
17
13
15
14
3
26
28
22
28
26
3
3
2
18
19
32
19
18
33
38
38
26
36
28
37
29
30
24
23
25
31
30
29
28
27
26
25
24
23
22
20
16
13
9
8
7
FIT
1:1
100%

Артикул

Название

Примечание

Количество

|$0

22N-54-00331

Cab Assembly

|$1

22M-54-24501

Window Assembly

1

22M-54-24512

Frame

2

22M-54-24292

Glass

3

22M-54-25490

Seal

4

22M-54-24670

Seal

5

22M-54-24521

Plate

6

01023-70610

Screw

7

22M-54-24551

Bracket

8

01010-D0816

Bolt

9

01643-70823

Washer

10

22M-54-24560

Bracket

11

01010-D0816

Bolt

12

01643-70823

Washer

13

22M-54-24570

Bracket

14

01010-D0820

Bolt

15

01643-70823

Washer

16

22M-54-24531

Plate

17

22M-54-24541

Plate

18

22M-54-24582

Striker

19

22B-54-15580

Plate

20

22M-54-24592

Striker

21

22M-54-24970

Striker

22

22M-54-24610

Spring, Gas

23

22M-54-24620

Bushing

24

22M-54-24630

Washer

25

22M-54-24640

Washer

26

22M-54-24660

Bushing

27

22B-54-15540

Roller

28

01245-00612

Screw

29

01010-D0820

Bolt

30

01643-70823

Washer

31

01435-40616

Bolt

32

20Y-54-11611

Stopper

33

20T-54-74550

Nut

34

22M-54-25712

Lock Assembly

35

01240-00616

Screw

36

22M-54-25722

Lock Assembly

37

01240-00616

Screw

38

22M-54-26150

Seal

Выбрано товаров: 40