Запчасти Komatsu PC460LC-8 ДВЕРЬ ПРАВ. (/) M [ЧАСТИ КОРПУСАS И КРЫШКИ]

Схема запчастей Komatsu PC460LC-8 - ДВЕРЬ ПРАВ. (/) M [ЧАСТИ КОРПУСАS И КРЫШКИ]
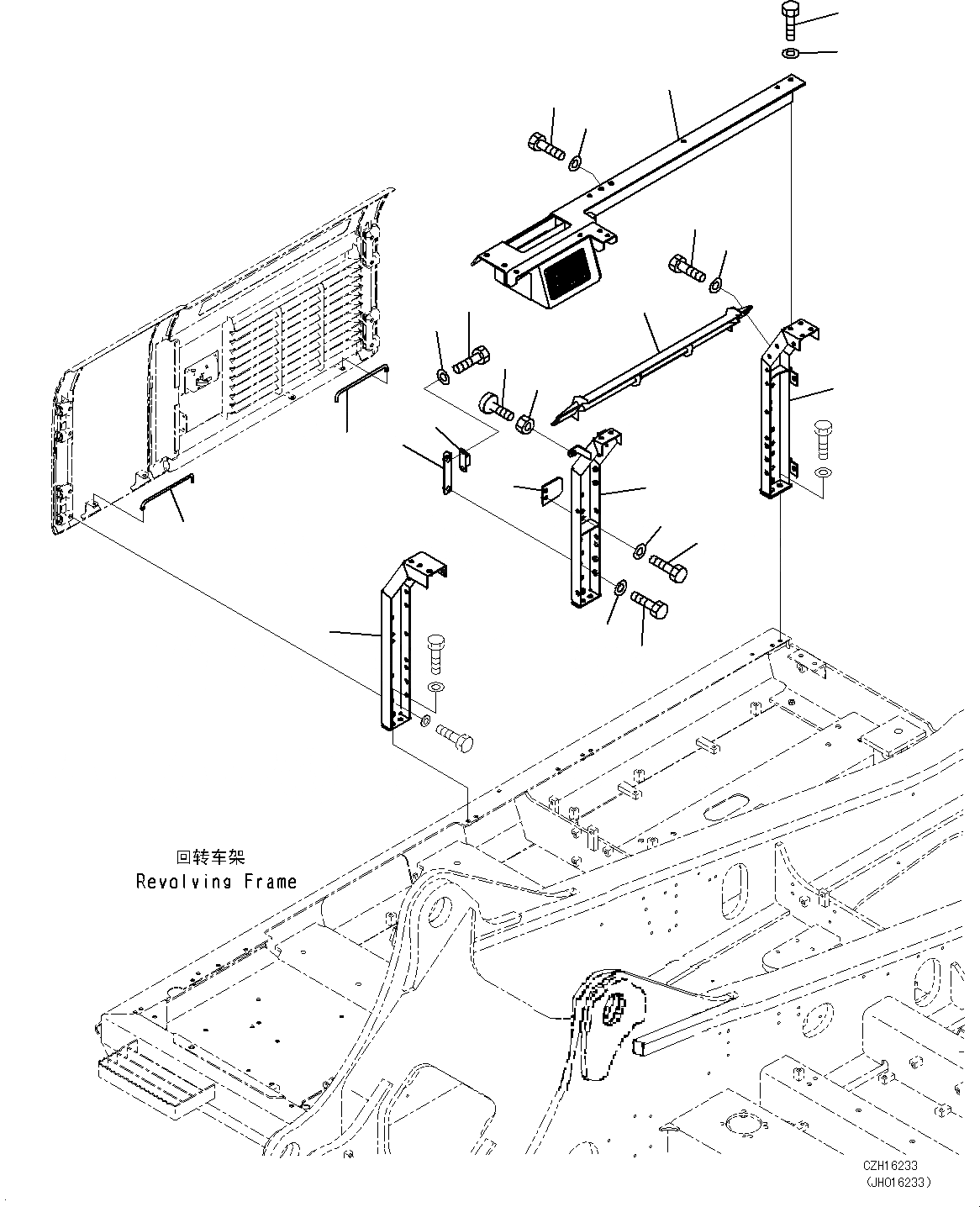
10
13
17
16
15
14
12
11
9
8
1
2
3
6
5
4
5
6
19
21
20
18
18
7
FIT
1:1
100%

Артикул

Название

Примечание

Количество

1

208-54-71314

FRAME

2

208-54-77862

FRAME

3

208-54-76472

FRAME

4

208-54-76712

FRAME

5

01010-81230

BOLT

6

01643-31232

WASHER

7

208-54-71931

PLATE

8

01010-81230

BOLT

9

01643-31232

WASHER

10

208-54-71940

BRACKET

11

01010-81230

BOLT

12

01643-31232

WASHER

13

205-54-51971

DOVETAIL

14

01010-80616

BOLT

15

01643-30623

WASHER

16

20Y-54-11611

STOPPER

17

01580-11008

NUT

18

20Y-54-29232

BAR

19

208-54-76881

LOUVER

20

01010-81230

BOLT

21

01643-31232

WASHER

Выбрано товаров: 21