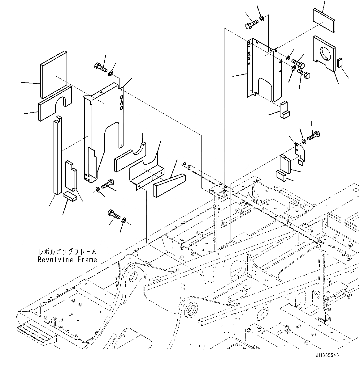
Запчасти Komatsu PC490LC-10 КАБИНА ПЕРЕГОРОДКА., (/) (№8-) КАБИНА ПЕРЕГОРОДКА.

Схема запчастей Komatsu PC490LC-10 - КАБИНА ПЕРЕГОРОДКА., (/) (№8-) КАБИНА ПЕРЕГОРОДКА.
23
4
19
12
20
5
3
2
10
11
13
14
18
9
8
24
1
15
17
16
26
7
6
6
7
16
17
22
21
25
27
FIT
1:1
100%

Артикул

Название

Примечание

Количество

|$0

208-54-41771

Cover

1

Cover

2

208-54-42571

Sheet

3

208-54-42580

Sheet

4

208-54-42611

Sheet

5

208-54-73540

Sheet

6

01010-81230

Bolt

7

01643-31232

Washer

8

01010-81230

Bolt

9

175-54-34170

Washer

9

208-54-41782

Cover

10

Cover

11

208-54-42621

Sheet

12

208-54-42631

Sheet

13

208-54-42641

Sheet

14

208-54-42650

Sheet

15

208-54-42662

Sheet

16

01010-81230

Bolt

17

01643-31232

Washer

17

208-54-41791

Cover

18

Plate

19

208-54-42670

Sheet

20

208-54-73380

Sheet

21

01010-81230

Bolt

22

01643-31232

Washer

22

208-54-42431

Cover

23

Cover

24

208-54-42690

Sheet

25

208-54-42711

Sheet

26

01010-81230

Bolt

27

01643-31232

Washer

Выбрано товаров: 31