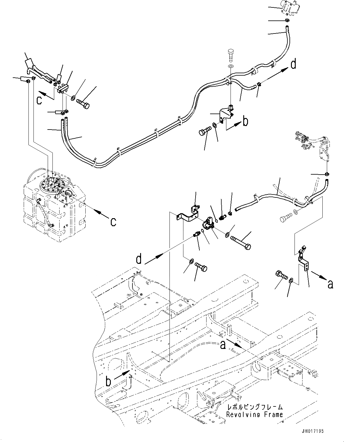
Запчасти Komatsu PC490LC-11 DEF ТРУБЫ, DEF БАК ХЛАДАГЕНТ ТРУБЫ (/) (№8-) DEF ТРУБЫ

Схема запчастей Komatsu PC490LC-11 - DEF ТРУБЫ, DEF БАК ХЛАДАГЕНТ ТРУБЫ (/) (№8-) DEF ТРУБЫ
5
5
5
5
3
7
5
23
22
21
20
19
18
17
16
15
14
13
12
11
10
9
8
2
5
4
3
2
1
5
7
6
8
FIT
1:1
100%

Артикул

Название

Примечание

Количество

1

208-01-22251

Hose Assembly

2

208-01-22261

Hose Assembly

3

208-01-22272

Hose Assembly

4

208-01-22372

Hose

5

09479-12400

Clip

6

6253-61-7100

Valve Assembly

7

208-01-22360

Joint

8

07002-11623

O-ring

9

208-01-22111

Bracket

10

01010-80865

Bolt

11

01643-30823

Washer

12

01010-81225

Bolt

13

01643-31232

Washer

14

208-01-27110

Bracket

15

01010-81225

Bolt

16

01643-31232

Washer

17

208-01-22131

Bracket

18

01010-81225

Bolt

19

01643-31232

Washer

20

208-01-22220

Joint

21

01010-81255

Bolt

22

01643-31232

Washer

23

208-03-22432

Connector

|$23

208-03-22431

Connector

Выбрано товаров: 24