Запчасти Komatsu PC550LC-8 БОКОВ. КРЫШКА ПРАВ., (/) (№78-) БОКОВ. КРЫШКА ПРАВ.

Схема запчастей Komatsu PC550LC-8 - БОКОВ. КРЫШКА ПРАВ., (/) (№78-) БОКОВ. КРЫШКА ПРАВ.
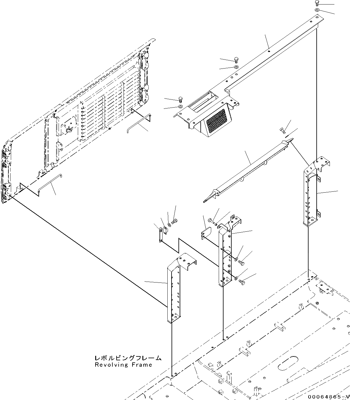
1
2
3
4
5
5
5
6
6
6
7
9
8
10
12
11
13
15
14
16
17
18
18
19
21
20
FIT
1:1
100%

Артикул

Название

Примечание

Количество

1

208-54-71312

Frame

2

208-54-77861

Frame

3

208-54-76471

Frame

4

208-54-76712

Frame

5

01010-81230

Bolt

6

01643-31232

Washer

7

208-54-71930

Plate

8

01010-81230

Bolt

9

01643-31232

Washer

10

208-54-71940

Bracket

11

01010-81230

Bolt

12

01643-31232

Washer

13

205-54-51970

Dovetail

14

01010-80616

Bolt

15

01643-30623

Washer

16

20Y-54-11611

Stopper

17

01580-11008

Nut

18

20Y-54-29232

Bar

19

208-54-76881

Louver

20

01010-81230

Bolt

21

01643-31232

Washer

Выбрано товаров: 21