Запчасти Komatsu PC55MR-3 КАБИНА, КРЕПЛЕНИЕ КАБИНЫ (№-) КАБИНА, КРОМЕ ЯПОН., С ПРОПОРЦИОНАЛЬН. РЫЧАГ УПРАВЛ-Я, ПЕЧКА, МАСТЕР КЛЮЧ, PROVISION ДЛЯ -ДОПОЛН. АКТУАТОР ТРУБЫ, БОЛЬШ. CA

Схема запчастей Komatsu PC55MR-3 - КАБИНА, КРЕПЛЕНИЕ КАБИНЫ (№-) КАБИНА, КРОМЕ ЯПОН., С ПРОПОРЦИОНАЛЬН. РЫЧАГ УПРАВЛ-Я, ПЕЧКА, МАСТЕР КЛЮЧ, PROVISION ДЛЯ -ДОПОЛН. АКТУАТОР ТРУБЫ, БОЛЬШ. CA
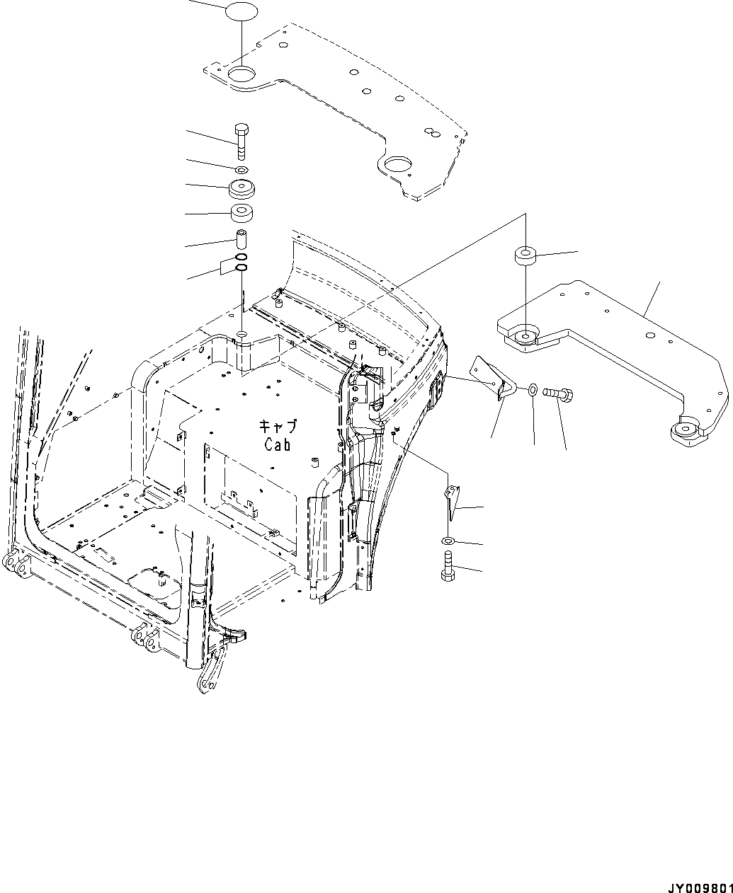
2
4
2
1
3
7
6
8
10
12
13
11
9
14
5
FIT
1:1
100%

Артикул

Название

Примечание

Количество

1

22M-54-36772

Bracket

2

203-54-21110

Cushion

3

22M-54-23210

Collar

4

22M-54-33220

Collar

5

07000-13025

O-ring

6

01010-81695

Bolt

7

01643-31645

Washer

8

22M-54-25692

Bracket

9

01010-D0816

Bolt

10

01643-70823

Washer

11

22M-54-35480

Bracket

12

01010-80816

Bolt

13

01643-30823

Washer

14

22M-54-26420

Cap

Выбрано товаров: 0