Запчасти Komatsu PC60-5 МЕХ-М УПРАВЛ-Я РАБОЧ. ОБОРУД-EM СИСТЕМА УПРАВЛЕНИЯ

Схема запчастей Komatsu PC60-5 - МЕХ-М УПРАВЛ-Я РАБОЧ. ОБОРУД-EM СИСТЕМА УПРАВЛЕНИЯ
1
1
2
3
4
5
6
7
8
9
10
10
10
10
10
10
11
11
11
11
12
12
13
13
13
13
13
13
13
14
15
16
17
18
18
19
20
21
22
FIT
1:1
100%

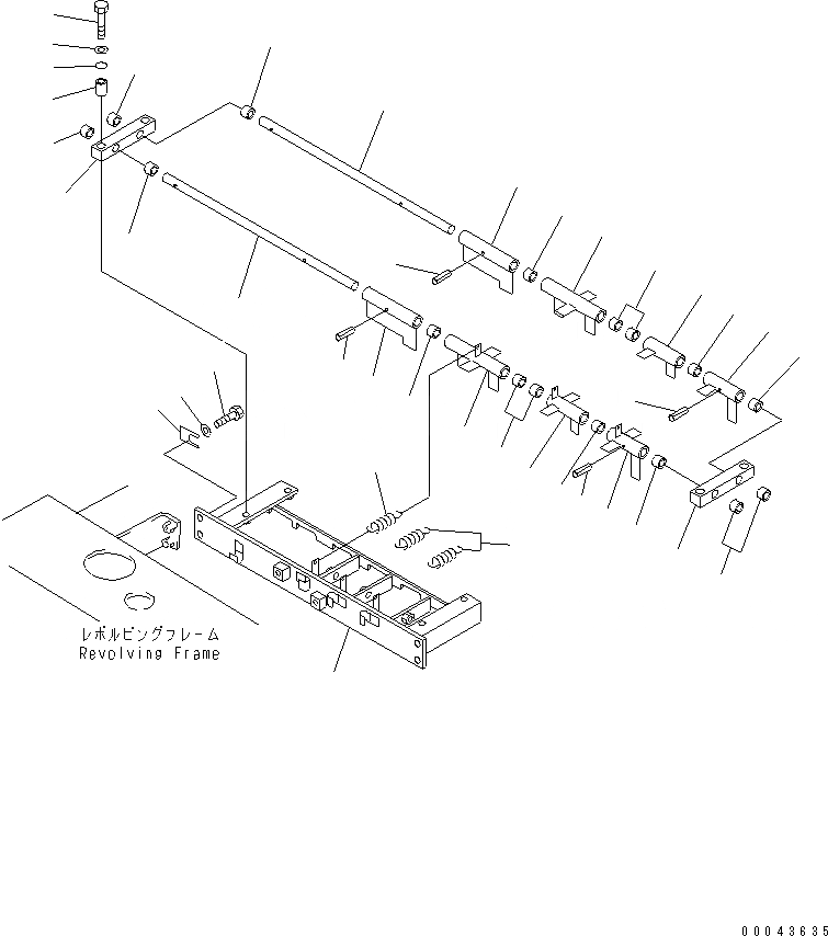
Артикул

Название

Примечание

Количество

1

20X-43-21810

SHAFT

2

20X-43-21820

LEVER

3

20X-43-21431

LEVER

4

20X-43-21441

LEVER

5

20X-43-21830

LEVER

6

20X-43-21840

LEVER

7

20X-43-21461

LEVER

8

20X-43-21471

LEVER

9

20X-43-21850

LEVER

10

203-43-31420

BUSHING

11

04025-00424

PIN,SPRING

12

20X-43-21481

BLOCK

13

203-43-31420

BUSHING

14

20X-43-21860

COLLAR

15

07002-12034

O-RING

16

01010-51045

BOLT

17

205-54-53590

WASHER

17

01643-31032

WASHER

18

20X-43-21870

SPRING

18

203-43-43230

SPRING

19

20X-43-21411

BRACKET

20

01010-51025

BOLT

21

01643-31032

WASHER

22

22X-70-12670

SHIM, 0.5MM

Выбрано товаров: 24