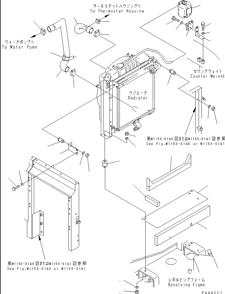
Запчасти Komatsu PC60-7 ОХЛАЖД-Е (ТРУБЫ И КРЕПЛЕНИЕ)(№-7) СИСТЕМА ОХЛАЖДЕНИЯ

Схема запчастей Komatsu PC60-7 - ОХЛАЖД-Е (ТРУБЫ И КРЕПЛЕНИЕ)(№-7) СИСТЕМА ОХЛАЖДЕНИЯ
1
2
3
4
5
6
6
6
7
8
8
9
9
10
10
11
11
12
12
13
14
15
16
17
18
19
20
21
22
23
24
25
26
FIT
1:1
100%

Артикул

Название

Примечание

Количество

1

201-03-71182

HOSE

2

201-03-71171

HOSE

3

201-03-51320

SEAT

4

08034-00823

BAND

5

207-09-11110

CLAMP

6

208-09-11110

CLAMP

7

20S-03-11330

CUSHION

8

01580-11008

NUT

9

01643-31032

WASHER

10

20R-03-11190

CUSHION

11

01580-10806

NUT

12

01643-30823

WASHER

13

201-03-71211

PLATE

14

01010-51025

BOLT

15

01643-31032

WASHER

16

362-03-14110

TANK

16

362-03-31160

CAP

17

362-03-14120

BRACKET

18

01010-50616

BOLT

19

01643-30623

WASHER

20

201-03-71341

BRACKET

21

01010-51025

BOLT

22

01643-31032

WASHER

23

201-03-71231

SHEET

24

201-03-71191

PLATE

25

201-03-71570

SHEET

26

201-03-71241

SHEET

Выбрано товаров: 27