Запчасти Komatsu PC600-6KJ НИЖН. КРЫШКА (ОСНОВНАЯ РАМА) (ДЕКА¤ ЛЕВ.) (ДЛЯ ЕС)(№-) ЧАСТИ КОРПУСА

Схема запчастей Komatsu PC600-6KJ - НИЖН. КРЫШКА (ОСНОВНАЯ РАМА) (ДЕКА¤ ЛЕВ.) (ДЛЯ ЕС)(№-) ЧАСТИ КОРПУСА
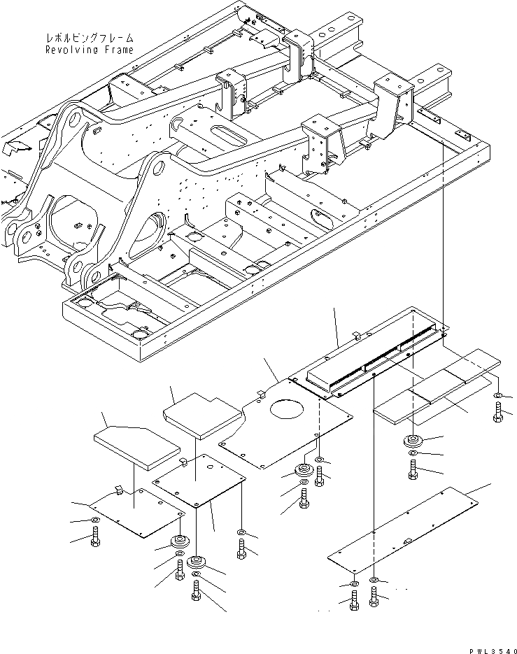
1
2
3
4
5
6
7
8
9
10
11
12
13
14
15
16
17
18
19
20
21
22
23
24
25
26
27
28
29
30
31
32
FIT
1:1
100%

Артикул

Название

Примечание

Количество

1

21M-54-18470

COVER

2

21M-54-18490

SHEET

3

21M-54-13170

COVER

4

01010-81235

BOLT

5

01643-31232

WASHER

6

208-54-57180

COLLAR

7

01010-81235

BOLT

8

01643-31232

WASHER

9

01010-81235

BOLT

10

175-54-34170

WASHER

11

01010-81235

BOLT

12

01643-31232

WASHER

13

21M-54-13140

COVER

14

01010-81230

BOLT

15

01643-31232

WASHER

16

208-54-57180

COLLAR

17

01010-81230

BOLT

18

01643-31232

WASHER

19

21M-54-13150

COVER

20

21M-54-13510

SHEET

21

21M-54-13160

COVER

22

21M-54-13520

SHEET

23

01010-81230

BOLT

24

01643-31232

WASHER

25

208-54-57180

COLLAR

26

01010-81230

BOLT

27

01643-31232

WASHER

28

01010-81230

BOLT

29

01643-31232

WASHER

30

208-54-57180

COLLAR

31

01010-81230

BOLT

32

01643-31232

WASHER

Выбрано товаров: 32